Lejlighed til salg i Torremolinos

Bolig ID: R5215213

€590,000

3,933 €/m2


150
3
soveværelser
3
Badeværelser
0
terrace
0
Grundareal

Completely renovated duplex with sea views – Torremolinos, Montemar area

Built area: 150 m²

Discover this spectacular, completely renovated duplex, located in one of the most exclusive areas of Montemar (Torremolinos). Its modern design, abundant natural light, and breathtaking sea views make it a unique property, ideal for enjoying the Mediterranean lifestyle in complete comfort.

✨ Layout and spaces

3 spacious bedrooms, all with excellent natural light.

2 full bathrooms and 1 guest toilet on the ground floor.

Living-dining room with large windows and panoramic sea views.

Separate kitchen, fully equipped with high-end appliances.

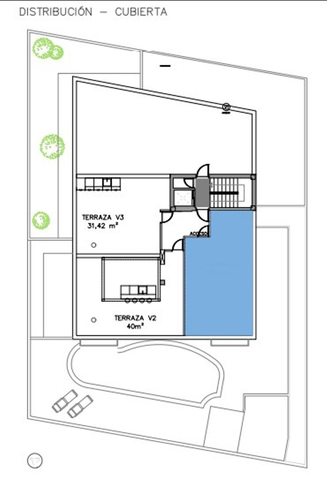
Several terraces facing the sea, perfect for relaxing and enjoying the surroundings.

Covered terrace of 36.40 m², bedroom terrace of 1.5 m², balcony terrace of 11.5 m², and side patio of 16.20 m².

Two private parking spaces (11 m² and 10 m²) and a storage room are included in the price.

Common Areas

The community offers a magnificent swimming pool and spacious gardens, with few residences and a peaceful atmosphere, ensuring privacy and exclusivity year-round.

Key Features

Key Features

Completely renovated property with high-quality materials and finishes.

Sea views from the living room, bedrooms, and main terrace.

Spacious and functional interior.

Move-in ready.

Residential area with excellent transport links and close to all amenities.

If you're looking for a home where comfort, design, and sea views blend seamlessly, this duplex in Montemar is the ideal choice.

Contact us for more information or to schedule a viewing.

In accordance with Decree 218/2005 of October 11, which approves the Regulation on Consumer Information in the Sale and Rental of Housing in Andalusia, the client is hereby informed that notary fees, registration fees, property transfer tax (ITP), and other expenses inherent to the sale or rental are not included in the price.

Brokerage fees are included in the price.
The information provided, including surface areas, prices, conditions, and availability of the property, is for informational purposes only and does not constitute a binding contractual offer. It may be subject to change without prior notice, and the availability of the property must be confirmed at the time of inquiry.

Energy certificate rating: E, consumption 98.6 kWh and emissions 17.6 kWh.


Egenskaber

Condition

  • Meget God

Features

  • Overdækket Terrasse
  • lift
    Elevator
  • bus-2
    Tæt På Transport
  • Privat Terrasse
  • Termoruder

Garden

  • Fælles

Kitchen

  • Fuldt Udstyret

Orientation

  • Syd

Parking

  • Garage
  • Mere end én

Pool

  • Fælles

Security

  • Lukket Kompleks
  • mobile-phone-blackberry-2
    Dørtelefon

Setting

  • shanty-house-village-1
    By
  • Nær Havet
  • Nær Skole
  • Aflukket boligområde

Udsigt

  • Hav

Beliggende i

Købekraft

Beregn din månedlige afdrag på lån

Din forventede månedlige ydelse

Bliv forhåndsgodkendt

Bolig-udland samarbejder med Mortage Direct

Vi tilbyder vores kunder de bedst mulige boliglån til ejendomskøb i Spanien. Få det bedste spanske boliglån med Mortgage Direct.

Mere info

Købsomkostninger

Vores udgiftskalkulator giver et skøn over alle omkostninger forbundet med at købe et hus i Spanien. Brug kun disse tal som vejledning: De faktiske tal varierer afhængigt af ejendommen, ejendommens placering og den bank du vælger sammen med andre faktorer. Til det samlede beløb skal du tilføje dine afdrag på dit realkreditlån samt bankgebyrer, hvis din bank opkræver det.

Samlede udgifter

Du kan måske også lide disse boliger