Byggegrund til salg i Mijas Costa

Bolig ID: R5199793

€695,000

725 €/m2


958
0
soveværelser
0
Badeværelser
0
terrace
230
Grundareal

Opportunity in the heart of Mijas Costa

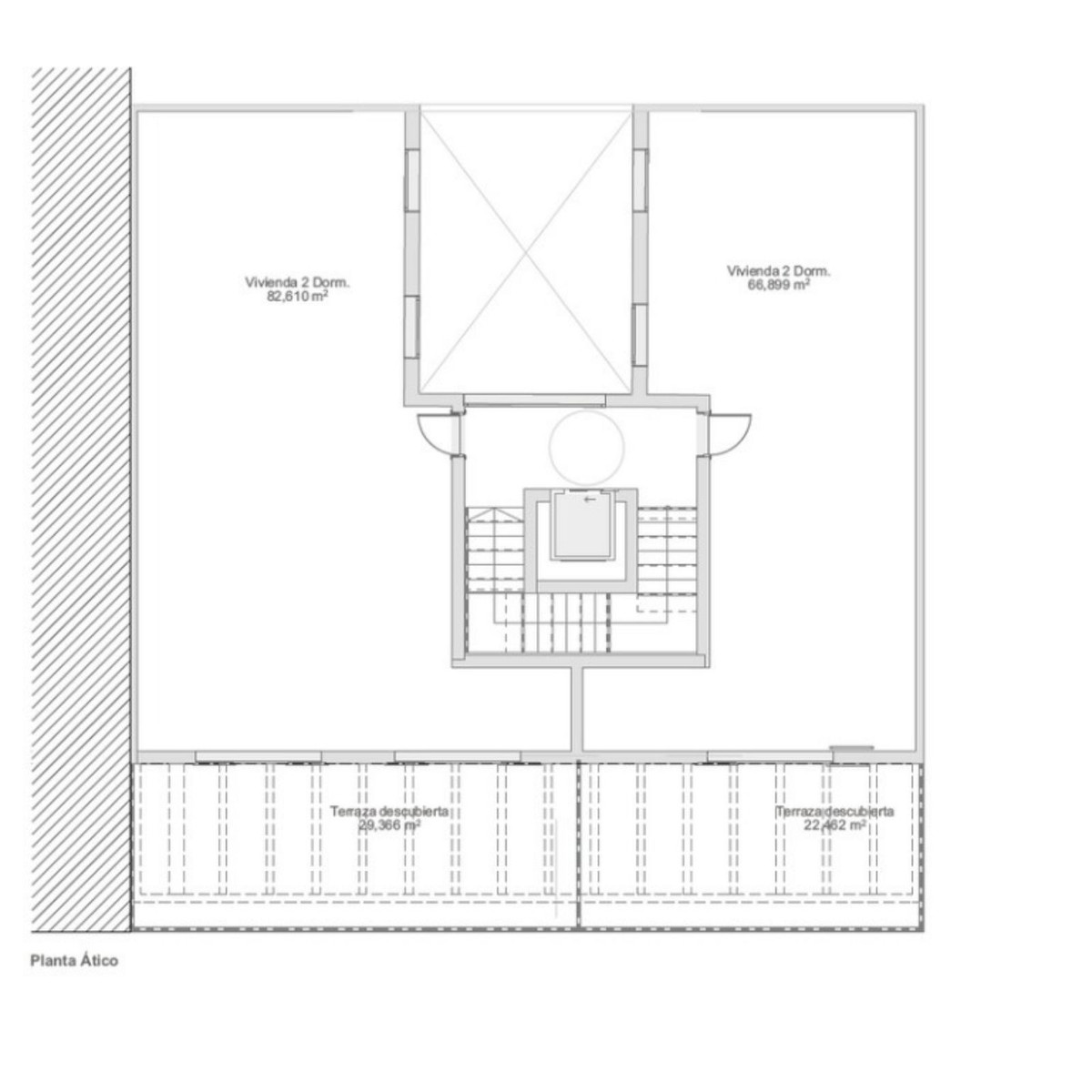
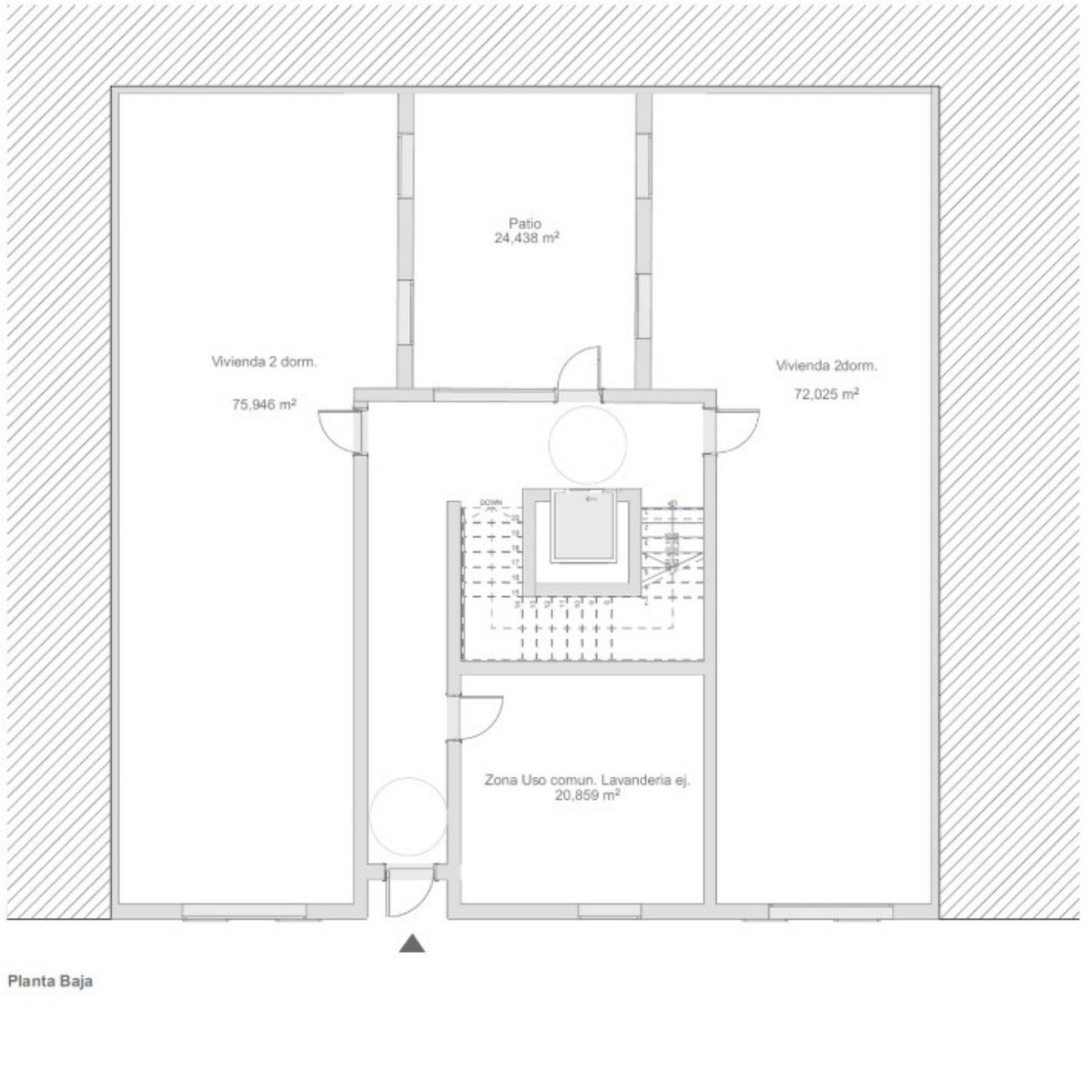
Charming old house located right in the center of Mijas Costa, with an approved project to build a new development of 10 apartments.
Enjoy an unbeatable location close to all amenities — shops, restaurants, transport, and everything you need for a comfortable lifestyle.

Perfect as an investment or residential development in one of the most sought-after areas of the Costa del Sol.

"Includes current plot and architectural project."

???? Don't hesitate to contact us for more information!


Beliggende i

Købekraft

Beregn din månedlige afdrag på lån

Din forventede månedlige ydelse

Bliv forhåndsgodkendt

Bolig-udland samarbejder med Mortage Direct

Vi tilbyder vores kunder de bedst mulige boliglån til ejendomskøb i Spanien. Få det bedste spanske boliglån med Mortgage Direct.

Mere info

Købsomkostninger

Vores udgiftskalkulator giver et skøn over alle omkostninger forbundet med at købe et hus i Spanien. Brug kun disse tal som vejledning: De faktiske tal varierer afhængigt af ejendommen, ejendommens placering og den bank du vælger sammen med andre faktorer. Til det samlede beløb skal du tilføje dine afdrag på dit realkreditlån samt bankgebyrer, hvis din bank opkræver det.

Samlede udgifter

Du kan måske også lide disse boliger