€770,000

3,516 €/m2


219
3
soveværelser
2
Badeværelser
0
terrace
0
Grundareal

Discover this magnificent townhouse in Fuente Olletas, one of the most picturesque and authentic neighborhoods in Málaga, located just minutes away from the vibrant historic center.

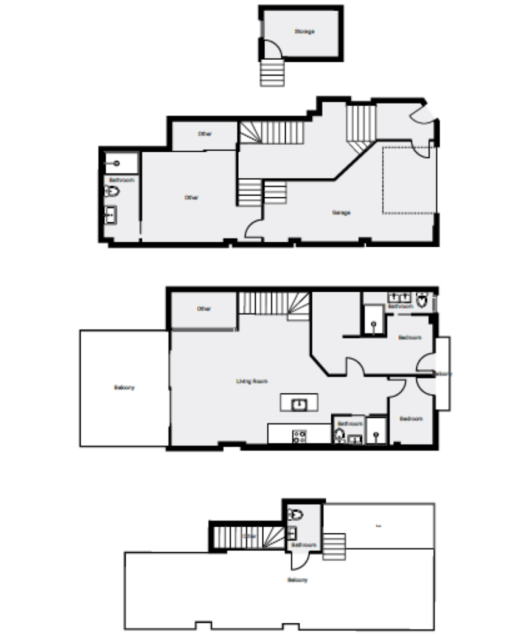
This property, spread over three levels, is designed to offer the perfect balance between functionality and elegance.

On the ground floor, you'll enjoy the convenience of two private parking spaces alongside a cozy living area. Moving up to the first floor, you'll find three bright bedrooms and a warm, inviting living room, perfect for sharing special moments with family.

The highlight of this home is its spectacular rooftop terrace, a private oasis featuring its own pool. This outdoor space is ideal for relaxing in the sun, hosting gatherings, or simply enjoying the views in a unique setting.

Make this townhouse in Fuente Olletas your new home and experience the charm of a traditional neighborhood combined with all the comforts of modern living. Don't miss out on this opportunity!

 


Egenskaber

Features

  • Overdækket Terrasse
  • WiFi
  • dresser-drawers-5
    Pulterrum

Parking

  • Garage

Security

  • Alarm

Beliggende i

Købekraft

Beregn din månedlige afdrag på lån

Din forventede månedlige ydelse

Bliv forhåndsgodkendt

Bolig-udland samarbejder med Mortage Direct

Vi tilbyder vores kunder de bedst mulige boliglån til ejendomskøb i Spanien. Få det bedste spanske boliglån med Mortgage Direct.

Mere info

Købsomkostninger

Vores udgiftskalkulator giver et skøn over alle omkostninger forbundet med at købe et hus i Spanien. Brug kun disse tal som vejledning: De faktiske tal varierer afhængigt af ejendommen, ejendommens placering og den bank du vælger sammen med andre faktorer. Til det samlede beløb skal du tilføje dine afdrag på dit realkreditlån samt bankgebyrer, hvis din bank opkræver det.

Samlede udgifter

Du kan måske også lide disse boliger