
5,592 €/m2
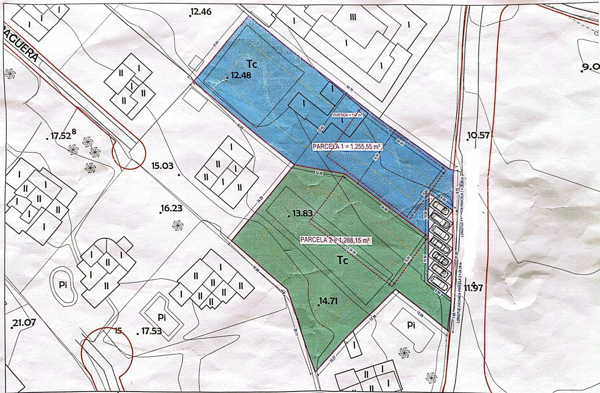
Plot of 2,600 m2 with a house and the possibility of dividing it into two buildable plots
This plot is located only a short distance from the sandy beach of Jávea and offers an excellent investment opportunity. The plot can be perfectly divided into two independent buildable plots of approximately 1,300 m2 each, suitable for building two luxury villas.
Currently, the plot contains a single-story villa with a built area of 152 m². The property features a living room with an open kitchen, a second living-dining room with a closed kitchen, three bedrooms, two bathrooms, and a patio with a storage room.
This plot is within walking distance of the sandy beach of Jávea and enjoys an excellent location close to all amenities. Supermarkets, restaurants, medical offices, sports facilities, and other daily necessities are all within a short distance. This location combines privacy with the convenience of a central setting.
Beliggende i
Købekraft
Beregn din månedlige afdrag på lån
Din forventede månedlige ydelse
Bliv forhåndsgodkendtBolig-udland samarbejder med Mortage Direct
Vi tilbyder vores kunder de bedst mulige boliglån til ejendomskøb i Spanien. Få det bedste spanske boliglån med Mortgage Direct.
Mere infoKøbsomkostninger
Vores udgiftskalkulator giver et skøn over alle omkostninger forbundet med at købe et hus i Spanien. Brug kun disse tal som vejledning: De faktiske tal varierer afhængigt af ejendommen, ejendommens placering og den bank du vælger sammen med andre faktorer. Til det samlede beløb skal du tilføje dine afdrag på dit realkreditlån samt bankgebyrer, hvis din bank opkræver det.