Byggegrund til salg i Coin

Bolig ID: R5108311

€110,000

€/m2


0
0
soveværelser
0
Badeværelser
0
terrace
813
Grundareal

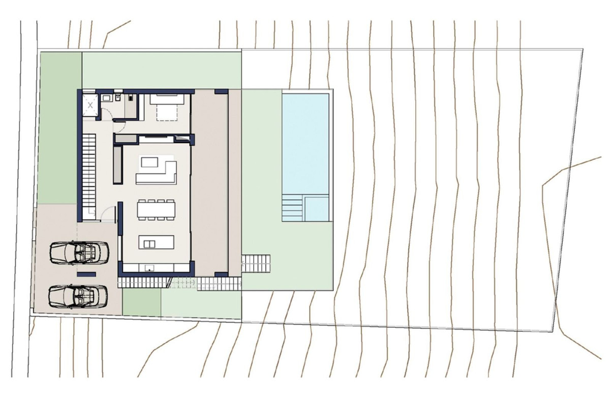
Urban plot with villa project in Coín

Magnificent plot of 823 m² located in Coín, an area in full growth with new constructions and great future projection. The plot has consolidated urban land and has an approved project for the construction of a villa of 287 m² with private pool.

It enjoys stunning panoramic views of the mountains, in a quiet and natural environment, ideal for year-round living or as a second home.

Excellent location, with quick access to the highway, all services nearby, and only 20 minutes from Malaga Airport and the coast.

A perfect opportunity to build the house of your dreams in a growing area.


Egenskaber

Orientation

  • Sydøst

Setting

  • Aflukket boligområde

Utilities

  • wall-socket
    Elektricitet
  • Drikkevand

Udsigt

  • Bjerge
  • Panoramisk

Beliggende i

Købekraft

Beregn din månedlige afdrag på lån

Din forventede månedlige ydelse

Bliv forhåndsgodkendt

Bolig-udland samarbejder med Mortage Direct

Vi tilbyder vores kunder de bedst mulige boliglån til ejendomskøb i Spanien. Få det bedste spanske boliglån med Mortgage Direct.

Mere info

Købsomkostninger

Vores udgiftskalkulator giver et skøn over alle omkostninger forbundet med at købe et hus i Spanien. Brug kun disse tal som vejledning: De faktiske tal varierer afhængigt af ejendommen, ejendommens placering og den bank du vælger sammen med andre faktorer. Til det samlede beløb skal du tilføje dine afdrag på dit realkreditlån samt bankgebyrer, hvis din bank opkræver det.

Samlede udgifter

Du kan måske også lide disse boliger