€595,000

1,617 €/m2


368
4
soveværelser
3
Badeværelser
0
terrace
1344
Grundareal

This lovely villa is perfectly located just a short walk from the beach and a short drive from amenities and the nearest golf club, offering a fantastic opportunity to enjoy the Mediterranean lifestyle. With beautiful sea and open views and a desirable southeast orientation, this well-maintained home enjoys plenty of natural light and sunshine throughout the day.

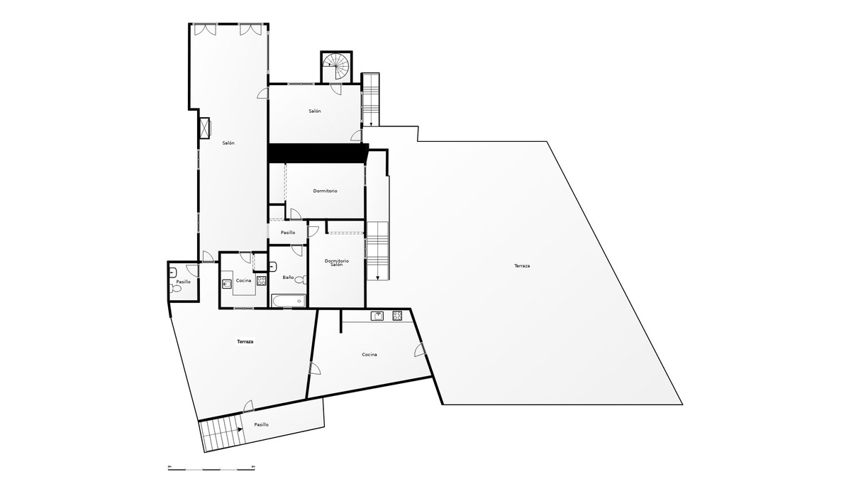
The property is set over two levels, each with its own kitchen, making it ideal for families, guests, or even rental potential. However, it could also be easily converted into one spacious home if desired. Inside, the villa features bright living spaces with double-glazed windows, air conditioning, and a glazed-in naya – a perfect spot to relax and take in the views all year round.

Outside, the villa is designed for easy living and entertaining, featuring a large terrace, a summer kitchen with a barbecue, and a private swimming pool that was renovated just four years ago. The low-maintenance garden adds to the charm, while a separate laundry/utility room provides extra convenience. 

KEY FEATURES:

Southeast orientation – plenty of sunshine all dayBeautiful sea & open viewsAmple parking spaceSpacious separate game roomConveniently located near a paddle and tennis courtTwo levels with separate kitchens (easily converted into one home)Private swimming pool (renovated 4 years ago)Summer kitchen & BBQ area

A fantastic opportunity in a great location – contact us today to arrange a viewing!



Egenskaber

Climate control

  • fireplace
    Pejs/Kamin

Features

  • Privat Terrasse
  • Satelit TV
  • dresser-drawers-5
    Pulterrum

Beliggende i

Købekraft

Beregn din månedlige afdrag på lån

Din forventede månedlige ydelse

Bliv forhåndsgodkendt

Bolig-udland samarbejder med Mortage Direct

Vi tilbyder vores kunder de bedst mulige boliglån til ejendomskøb i Spanien. Få det bedste spanske boliglån med Mortgage Direct.

Mere info

Købsomkostninger

Vores udgiftskalkulator giver et skøn over alle omkostninger forbundet med at købe et hus i Spanien. Brug kun disse tal som vejledning: De faktiske tal varierer afhængigt af ejendommen, ejendommens placering og den bank du vælger sammen med andre faktorer. Til det samlede beløb skal du tilføje dine afdrag på dit realkreditlån samt bankgebyrer, hvis din bank opkræver det.

Samlede udgifter

Du kan måske også lide disse boliger