Byhus/Rækkehus til salg i Jávea

Bolig ID: R5013943

€400,000

2,000 €/m2


200
3
soveværelser
3
Badeværelser
0
terrace
0
Grundareal

A home with space, light, and privacy in the heart of Jávea!

If you're looking for a truly spacious home, with privacy, natural light all day long, and a central location without giving up peace and quiet… you've just found it.

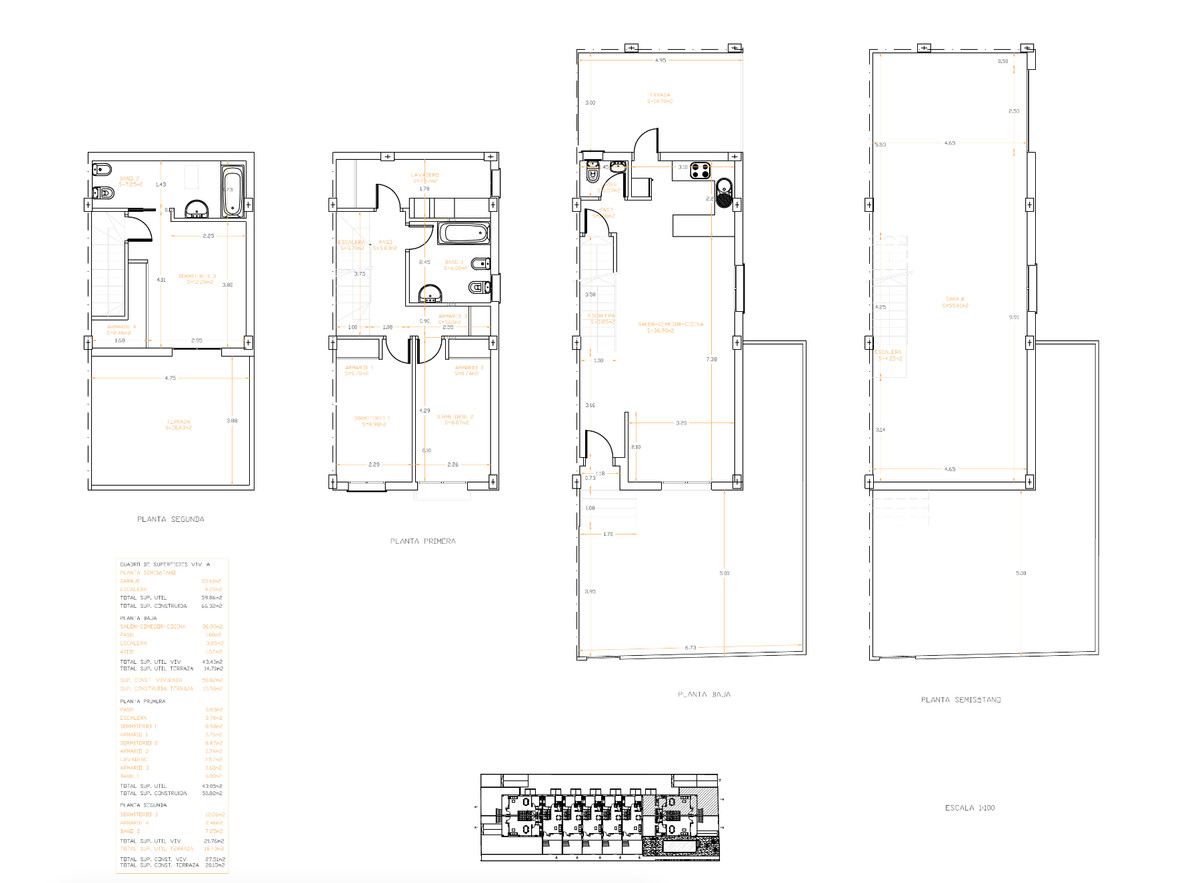
This three-storey townhouse with 200 m² built area is one of those rare opportunities in Jávea. Located just a few steps from supermarkets, shops, and services, it combines the convenience of being in the centre with the luxury of a private garage with direct access to the home, large sunny terraces, and a peaceful, intimate atmosphere.

Ideal for families or for those who work from home and need extra space, this property offers:

A spacious and bright living-dining room with access to a private terrace, perfect for enjoying Jávea's wonderful climate all year round.

Three bedrooms, including a master suite with private bathroom and an 18 m² terrace – ideal for disconnecting in total privacy.

A large bathroom, guest toilet, and separate laundry room designed to make your daily life easier.

Double-glazed windows, electric shutters, and south-facing orientation that fill the house with natural light and warmth from morning to evening.

And as if that weren't enough, there's a communal pool – perfect for cooling off without worrying about maintenance, in a quiet, residential area.

Yes, the house needs a cosmetic update, but the structure is solid and the space is well distributed. With a small renovation, you can turn this townhouse into the home you've always dreamed of – offering more space than most flats or villas in this area for the same price.

113 m² of living space + 35 m² of terraces + 55 m² of private garage.

A home with soul, space, and endless possibilities.

Can you picture yourself living here? Come and see it for yourself!


Beliggende i

Købekraft

Beregn din månedlige afdrag på lån

Din forventede månedlige ydelse

Bliv forhåndsgodkendt

Bolig-udland samarbejder med Mortage Direct

Vi tilbyder vores kunder de bedst mulige boliglån til ejendomskøb i Spanien. Få det bedste spanske boliglån med Mortgage Direct.

Mere info

Købsomkostninger

Vores udgiftskalkulator giver et skøn over alle omkostninger forbundet med at købe et hus i Spanien. Brug kun disse tal som vejledning: De faktiske tal varierer afhængigt af ejendommen, ejendommens placering og den bank du vælger sammen med andre faktorer. Til det samlede beløb skal du tilføje dine afdrag på dit realkreditlån samt bankgebyrer, hvis din bank opkræver det.

Samlede udgifter

Du kan måske også lide disse boliger