Kommercielle Lokaler til salg i Cancelada

Bolig ID: R4982077

€600,000

668 €/m2


898
0
soveværelser
0
Badeværelser
328
terrace
0
Grundareal

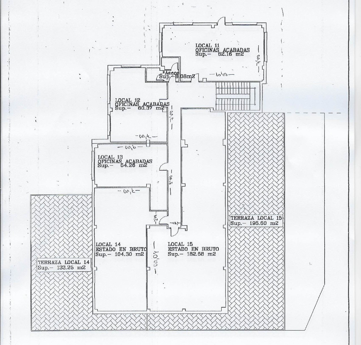
Located in the Cancelada area, in East Estepona, these commercial premises offer a unique opportunity to establish a business in a strategic environment. With a total built area of 898 m², including 569.75 m² of interiors and 328.75 m² of terraces, this set of premises stands out for its incredible open views, including terraces with sea views. The proximity to essential services such as schools, shops, restaurants, public transport, and golf courses, as well as the beach and the city center, makes it a privileged location.

The asset package consists of a set of six premises distributed over two floors. On the first floor, there are four premises, three of which are fully equipped for office use, with areas of 82.16 m², 60.37 m², and 54.26 m² respectively. The fourth premise, in its raw state, offers 104.30 m² of interior space and a terrace of 133.26 m². Additionally, on this same floor, there is another raw premise with 182.58 m² of interiors and a large terrace of 195.50 m². On the second floor, there is an additional premise finished for office use with an area of 86.08 m², ideal for administrative or commercial activities.

The terraces, totaling 328.75 m², offer a versatile space that can be used for various outdoor activities, events, or as a relaxation area. These outdoor areas, along with the panoramic and urban views, add value to the premises, making this set of premises an attractive option for different types of businesses.

Among the extras that complete this property, there is a private garage with a capacity for 10 vehicles, ensuring convenience and security for employees and clients. Although some of the premises require renovation, this feature allows customization of the spaces according to the specific needs of the business. The strategic location, along with the features and potential of the premises, make this property an interesting investment in one of the most dynamic areas of Estepona.


Egenskaber

Condition

  • Renovering Nødvendig

Features

  • bus-2
    Tæt På Transport

Parking

  • Mere end én
  • Privat

Setting

  • Nær Golf
  • Nær Forretninger
  • Nær Havet
  • shanty-house-village-1
    Nær By
  • Nær Skole

Udsigt

  • Hav
  • Panoramisk
  • Byzone

Beliggende i

Købekraft

Beregn din månedlige afdrag på lån

Din forventede månedlige ydelse

Bliv forhåndsgodkendt

Bolig-udland samarbejder med Mortage Direct

Vi tilbyder vores kunder de bedst mulige boliglån til ejendomskøb i Spanien. Få det bedste spanske boliglån med Mortgage Direct.

Mere info

Købsomkostninger

Vores udgiftskalkulator giver et skøn over alle omkostninger forbundet med at købe et hus i Spanien. Brug kun disse tal som vejledning: De faktiske tal varierer afhængigt af ejendommen, ejendommens placering og den bank du vælger sammen med andre faktorer. Til det samlede beløb skal du tilføje dine afdrag på dit realkreditlån samt bankgebyrer, hvis din bank opkræver det.

Samlede udgifter

Du kan måske også lide disse boliger