Byhus/Rækkehus til salg i San Roque Club

Bolig ID: R4980715

€799,000

2,854 €/m2


280
3
soveværelser
2
Badeværelser
104
terrace
188
Grundareal

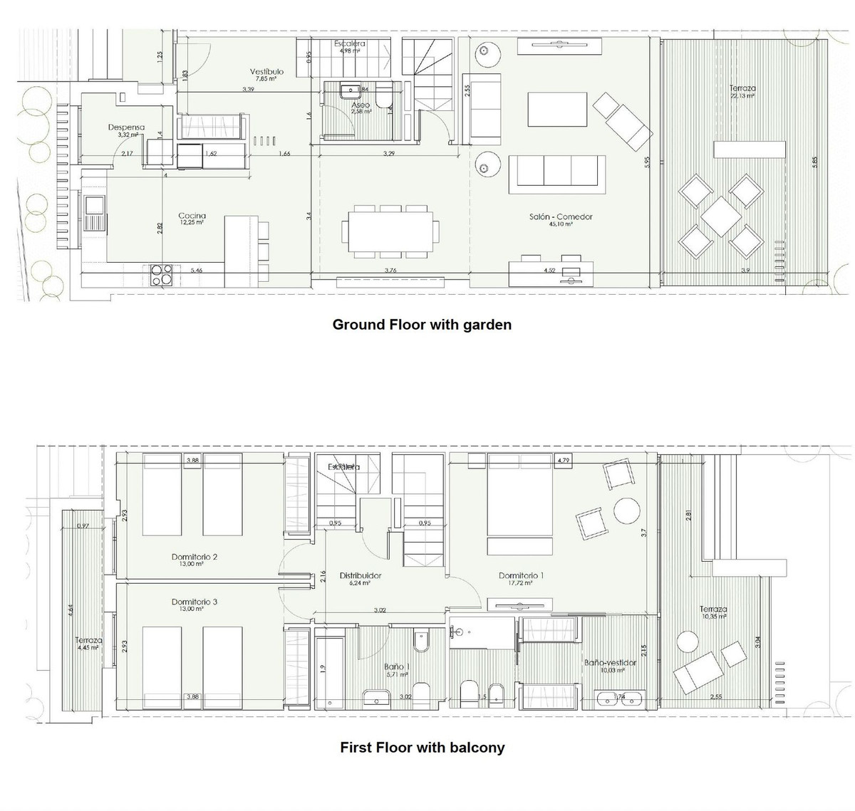
This exceptional townhouse, completed in 2022, offers contemporary living with stunning views of the prestigious San Roque Golf Club. With 180 m² of usable space, whether you're looking for a dream vacation home or a permanent residence, this property has it all. Featuring 3 spacious bedrooms, a stylish living and dining area, an open-concept kitchen, 2 bathrooms, a guest toilet, as well as storage space and 2 garage spaces, this home combines comfort and practicality.

The ground floor boasts a bright and airy living room that opens up to a large west-facing terrace and private garden, perfect for outdoor gatherings, with stunning views of the golf course. The sleek, modern kitchen is fully equipped with high-end appliances. Also on this level, you'll find a convenient guest WC and a useful storage room. Upstairs, the master bedroom comes with an en-suite bathroom and a private glazed balcony overlooking the golf course. Two additional well-sized bedrooms share a bathroom with a bathtub, and have access to a balcony with views of the community pool.

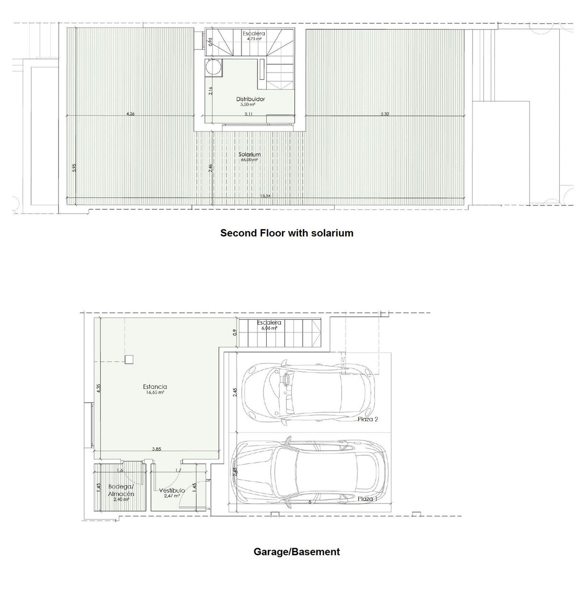
The spacious rooftop terrace, offers panoramic views of the sparkling sea, the well-maintained golf course, and the community area. Large, modern windows with aluminum frames flood the home with natural light, while an energy-efficient heat pump system ensures comfort throughout the year.

Situated in a secure, gated community with 24-hour security, this property offers both luxury and peace of mind. The complex features a gym, sauna, and a communal pool, all surrounded by beautifully landscaped gardens and cork oak trees. Located in a peaceful setting, it's just a short drive from Alcaidesa Beach and Sotogrande Marina.

This is a rare opportunity to live in one of the most sought-after locations in Spain. Don't miss your chance to own this exceptional property!


Egenskaber

Climate control

  • A/C

Condition

  • Meget God

Features

  • Overdækket Terrasse
  • dresser-wardrobe
    Indbyggede Garderobeskabe
  • Privat Terrasse
  • Solterasse
  • Motionsrum
  • dresser-drawers-5
    Pulterrum
  • home-improvement-12_1
    Vaskehus
  • En-Suite Badeværelse
  • cellar-3
    Kælderen

Garden

  • Fælles
  • Privat

Kitchen

  • Fuldt Udstyret

Orientation

  • Vest

Parking

  • Garage
  • Mere end én

Pool

  • Fælles

Security

  • Lukket Kompleks
  • 24 Timers Vagt
  • saving-safe-1
    Pengeskab

Setting

  • Golfbane Første Række
  • Nær Golf
  • Aflukket boligområde

Udsigt

  • Hav
  • Golf
  • Have

Beliggende i

Købekraft

Beregn din månedlige afdrag på lån

Din forventede månedlige ydelse

Bliv forhåndsgodkendt

Bolig-udland samarbejder med Mortage Direct

Vi tilbyder vores kunder de bedst mulige boliglån til ejendomskøb i Spanien. Få det bedste spanske boliglån med Mortgage Direct.

Mere info

Købsomkostninger

Vores udgiftskalkulator giver et skøn over alle omkostninger forbundet med at købe et hus i Spanien. Brug kun disse tal som vejledning: De faktiske tal varierer afhængigt af ejendommen, ejendommens placering og den bank du vælger sammen med andre faktorer. Til det samlede beløb skal du tilføje dine afdrag på dit realkreditlån samt bankgebyrer, hvis din bank opkræver det.

Samlede udgifter

Du kan måske også lide disse boliger