
€/m2
Price reduced ! Location is the key to this plot. Positioned in lower Los Pacos it is walking distance to all amenities, with restaurants, bars, shops and both local and international schools just a short stroll away.
Fuengirola town and the beach is just 10 minutes' walk and all easily accessible to the train station at Los Boliches connecting you to the airport and Malaga city center.
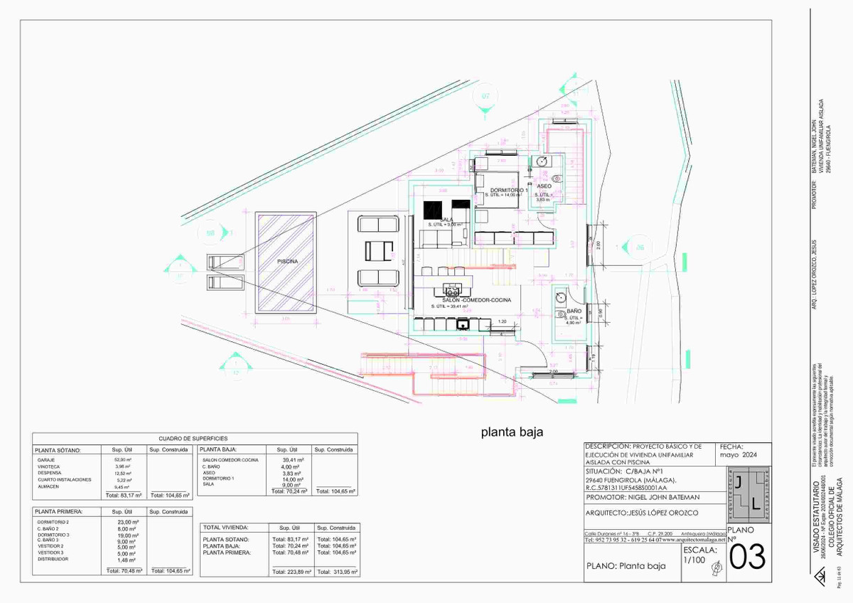
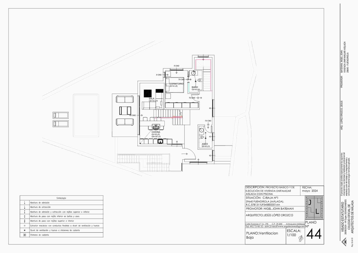
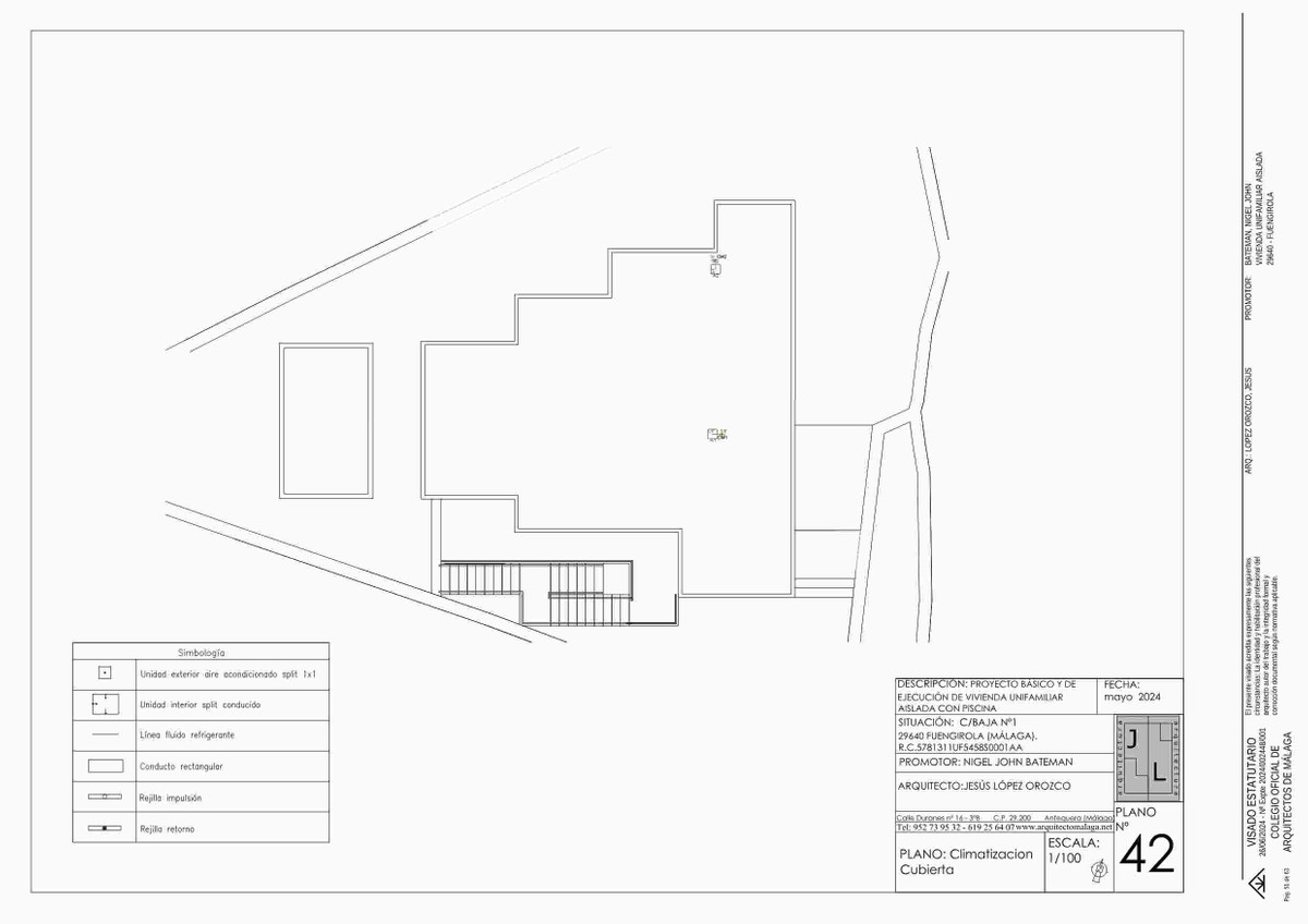
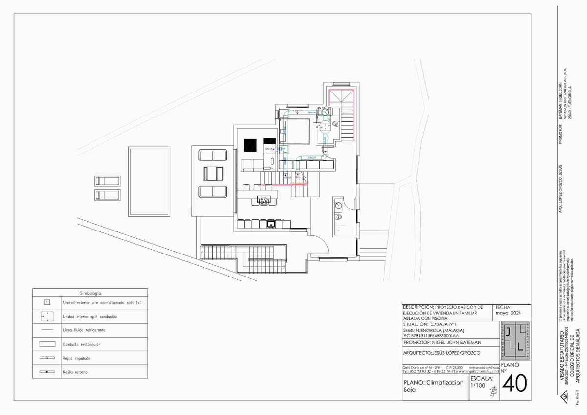
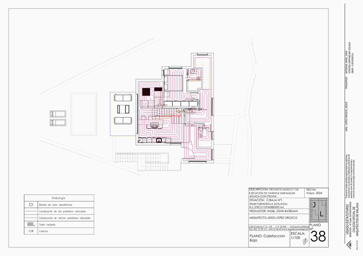
A luxury villa has been carefully designed by a highly renowned architect with all permits and building licences granted so the construction of this dream villa can begin immediately.
With a build size of over 300m2 the villa offers 3 floors of open plan spaces. A minimum of 3 bedrooms and ensuite bathrooms. Garage, gym, wine celler, swimming pool and gazebo.
A rare find so for more information and viewings dont hesitate to call
Egenskaber
Features
-
Tæt På Transport
-
Nær kirke
Setting
-
Nær Havn/Marina
-
Nær Forretninger
-
Nær By
-
Nær Skole
Beliggende i
Købekraft
Beregn din månedlige afdrag på lån
Din forventede månedlige ydelse
Bliv forhåndsgodkendtBolig-udland samarbejder med Mortage Direct
Vi tilbyder vores kunder de bedst mulige boliglån til ejendomskøb i Spanien. Få det bedste spanske boliglån med Mortgage Direct.
Mere infoKøbsomkostninger
Vores udgiftskalkulator giver et skøn over alle omkostninger forbundet med at købe et hus i Spanien. Brug kun disse tal som vejledning: De faktiske tal varierer afhængigt af ejendommen, ejendommens placering og den bank du vælger sammen med andre faktorer. Til det samlede beløb skal du tilføje dine afdrag på dit realkreditlån samt bankgebyrer, hvis din bank opkræver det.