Land til salg i Calpe

Bolig ID: R4790545

€750,000

€/m2


0
0
soveværelser
0
Badeværelser
0
terrace
4322
Grundareal

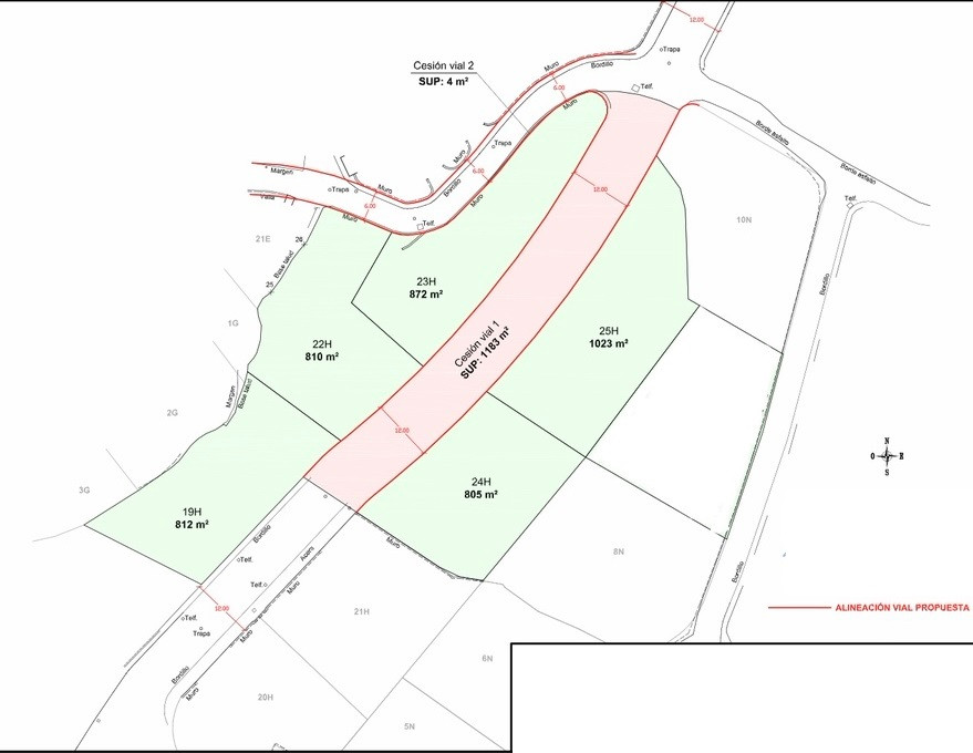
OFFER  Sale of 5 PLOTS in Gran Sol (Calpe). This is a proposal for sale for investors of 5 plots, 19H (812 m²), 22H (810 m²), 23H (872 m²), 24H (805 m²)  and 25H (1,023 m²), in the Gran Sol area in  Calpe. The plots are located in one of the most beautiful residential areas of the Costa Blanca. The towns of Calpe, Benissa and Moraira offer a coastline of extraordinary attraction and of great scenic and ecological interest, with a rugged coastline with numerous beaches and hidden coves.

Just 1.5 km from these plots, is the main beach of the town, Playa de la Fustera, a sandy beach located between the Les Basetes Yacht Club and Cala Pinets, which has the "Blue Flag" distinction accrediting the quality of its waters and the multiple services available: promenade, walkways and access for the disabled, children's play and sports area, red cross, bus stop, car park, maritime surveillance, cafes and restaurants, etc.

 

These pitches are not sold separately, the price includes all 5 pitches.


Beliggende i

Købekraft

Beregn din månedlige afdrag på lån

Din forventede månedlige ydelse

Bliv forhåndsgodkendt

Bolig-udland samarbejder med Mortage Direct

Vi tilbyder vores kunder de bedst mulige boliglån til ejendomskøb i Spanien. Få det bedste spanske boliglån med Mortgage Direct.

Mere info

Købsomkostninger

Vores udgiftskalkulator giver et skøn over alle omkostninger forbundet med at købe et hus i Spanien. Brug kun disse tal som vejledning: De faktiske tal varierer afhængigt af ejendommen, ejendommens placering og den bank du vælger sammen med andre faktorer. Til det samlede beløb skal du tilføje dine afdrag på dit realkreditlån samt bankgebyrer, hvis din bank opkræver det.

Samlede udgifter

Du kan måske også lide disse boliger