Byggegrund til salg i Selwo

Bolig ID: R4764556

€350,000

1,282 €/m2


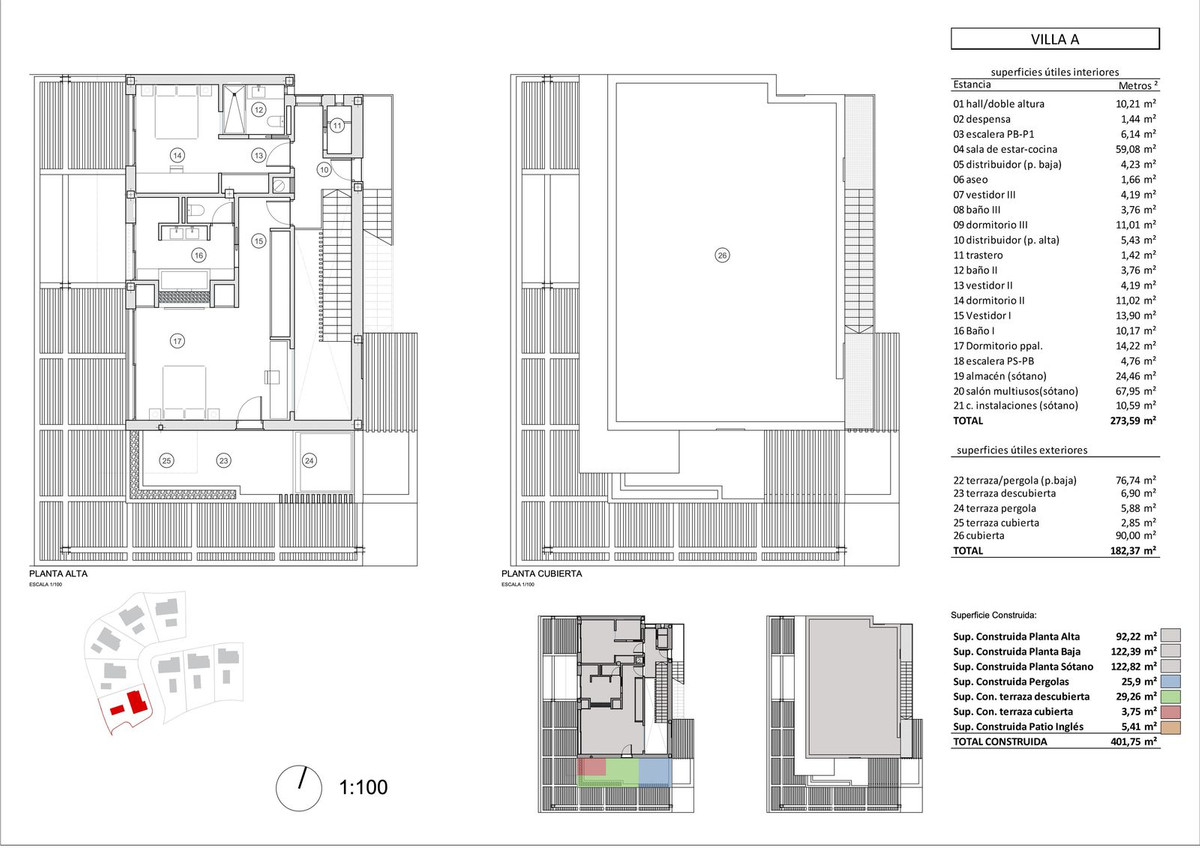
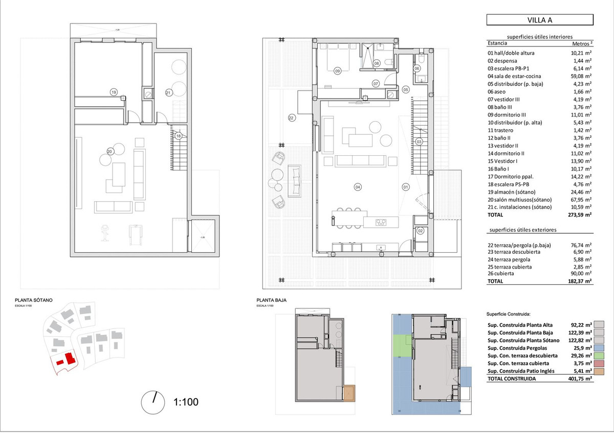
273
0
soveværelser
0
Badeværelser
0
terrace
800
Grundareal

Super opportunity for investment for your new home!
Five plots for sale in the super fast developing area of ​​the "New Golden Mile" - Selwo, where the most prestigious private American school, cafes, new SPA-center with tennis and paddle courts and the best beaches are located.
The plots measure between 800 - 857 meters, the permitted construction percentage is 25% plus basement.
The project and construction license are included in the sale price, but however it is NOT mandatory to execute the project, you can change the project and chose the design of your choosing.
Call us for more details.


Egenskaber

Condition

  • NyByggeri

Orientation

  • Syd

Setting

  • Nær Skole

Udsigt

  • Hav
  • Bjerge
  • Landområde
  • Panoramisk

Beliggende i

Købekraft

Beregn din månedlige afdrag på lån

Din forventede månedlige ydelse

Bliv forhåndsgodkendt

Bolig-udland samarbejder med Mortage Direct

Vi tilbyder vores kunder de bedst mulige boliglån til ejendomskøb i Spanien. Få det bedste spanske boliglån med Mortgage Direct.

Mere info

Købsomkostninger

Vores udgiftskalkulator giver et skøn over alle omkostninger forbundet med at købe et hus i Spanien. Brug kun disse tal som vejledning: De faktiske tal varierer afhængigt af ejendommen, ejendommens placering og den bank du vælger sammen med andre faktorer. Til det samlede beløb skal du tilføje dine afdrag på dit realkreditlån samt bankgebyrer, hvis din bank opkræver det.

Samlede udgifter

Du kan måske også lide disse boliger