Villa til salg i Sotogrande Alto

Bolig ID: R4631638

€3,795,000

5,664 €/m2


670
4
soveværelser
5
Badeværelser
232
terrace
3500
Grundareal

Moderne økologisk villa i La Reserva de Sotogrande med fantastisk panoramaudsigt og 4 soveværelser med 4 ensuite badeværelser og et gæstetoilet.
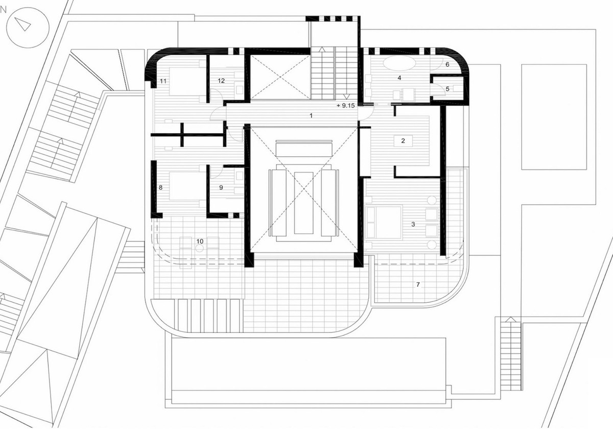
Denne ejendom vil blive bygget i 3 etager og bestå af;
Kælder: garage, installationsrum, opbevaringsrum, fordeler, maskinrum med vandfald, stue, billardrum, 1 soveværelse med vindue i fuld størrelse og naturligt lys, eget badeværelse, biografrum, poolinstallationsrum og en Zen-terrasse.
Stueetage: entré med fordeler, gæstetoilet, spisekammer/vaskerum, fuldt udstyret køkken, spisestue, opholdsstue, stue, 1 soveværelse med eget badeværelse, pool, chill-out, grill og have, terrasser og overdækket terrasse.
Første sal; distributør, påklædningsværelse, soveværelse med Home Spa, toilet, bruser og terrasse, et andet badeværelse med ensuite badeværelse og terrasse.
Som du kan se, er der ikke elevator i tegningerne, men hvis kunden ønsker det, vil det blive leveret uden ekstra omkostninger og vil øge det samlede bebyggede areal med ca. 20,00 m2.
Billeder af badeværelser og køkkener er blot eksempler på, hvordan det kan se ud, men det er kunden, der træffer det endelige valg!
Eksempel på nogle af specifikationerne;
- Højisoleret kældergulv og tag med JACKODUR eller lignende
- Isolerede hulrumsvægge
- Indvendige og udvendige gulvfliser fra GRESPANIA 600x600 - 800x800 - 1200x1200 (farve og størrelse efter eget valg)
- Badeværelsesvægge med COVERLAM-plader 2700X1200 (valgfri farve)
- Badeværelser fra ROCA
- Aerotermi/luftkonditionering
- Elevator fra Schindler
- Gulvvarme i hele villaen
- Loftshøje vinduer med forsænket spor, 5+5/kammer/6+6
- Loftshøje og 1 meter brede døre
- Loftshøj svingdør og 1,50 bred
- Fuldt udstyret køkken med aluminiumslåger og monteret med COVERLAM (valgfri farve)
- Ø med COVERLAM 3600X1600 ingen synlige samlinger
- Hårde hvidevarer fra Bosch eller AEG (efter bygherrens valg)
- Stikpropper, afbrydere og lysdæmpere fra NIESSEN
- Opvarmet pool
- 20 voltaiske paneler
- 2 litiumbatterier på hver 10 kW
- Oplader til bil
- Domótica

Vi er et byggefirma, Key-in-Hand, der kan designe og konstruere alle de muligheder, du kan forestille dig. Hvis du ikke ser et design fra os, som du kan lide, designer vi en helt ny villa til dig i henhold til dine ideer og input.
Selvom vi foretrækker at bygge økologisk, kan vi bygge alt fra traditionelt byggeri til økologiske konstruktioner - det hele afhænger af dig.


Egenskaber

Climate control

  • A/C
  • A/C Varm
  • A/C Kold
  • fireplace
    Pejs/Kamin
  • Gulvvarme
  • Gulvvarme Badeværelse

Features

  • Overdækket Terrasse
  • lift
    Elevator
  • dresser-wardrobe
    Indbyggede Garderobeskabe
  • Privat Terrasse
  • Solterasse
  • WiFi
  • board-game
    Spillerum
  • Gæstelejlighed
  • dresser-drawers-5
    Pulterrum
  • home-improvement-12_1
    Vaskehus
  • En-Suite Badeværelse
  • Barbeque
  • Termoruder
  • Home Automation
  • Restaurant På Stedet
  • cellar-3
    Kælderen
  • Optisk Fiber

Orientation

  • Øst
  • Sydøst
  • Syd
  • Sydvest
  • Vest

Pool

  • Privat
  • Opvarmet

Setting

  • Nær Golf
  • Nær Skole
  • Nær Skov
  • Aflukket boligområde

Udsigt

  • Bjerge
  • Landområde
  • Panoramisk
  • Have
  • Pool

Beliggende i

Købekraft

Beregn din månedlige afdrag på lån

Din forventede månedlige ydelse

Bliv forhåndsgodkendt

Bolig-udland samarbejder med Mortage Direct

Vi tilbyder vores kunder de bedst mulige boliglån til ejendomskøb i Spanien. Få det bedste spanske boliglån med Mortgage Direct.

Mere info

Købsomkostninger

Vores udgiftskalkulator giver et skøn over alle omkostninger forbundet med at købe et hus i Spanien. Brug kun disse tal som vejledning: De faktiske tal varierer afhængigt af ejendommen, ejendommens placering og den bank du vælger sammen med andre faktorer. Til det samlede beløb skal du tilføje dine afdrag på dit realkreditlån samt bankgebyrer, hvis din bank opkræver det.

Samlede udgifter

Du kan måske også lide disse boliger