Villa til salg i Mijas Golf

Bolig ID: R4416799

€1,150,000

2,712 €/m2


424
4
soveværelser
4
Badeværelser
70
terrace
1150
Grundareal

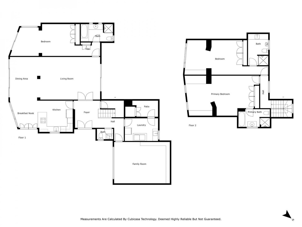
Immaculately presented 4 bedroom villa on the prestigious urbanisation of Mijas Golf.
good size kitchen leading to lounge/dining room which has an abundance of natural light.

well manicured garden with tikka style outside dining area situated next to the pool
Truly exquisite property for a family home or perfect rental property for an all year round income

Detached Villa, Mijas Golf, Costa del Sol.
4 Bedrooms, 4 Bathrooms, Built 424 m², Terrace 70 m², Garden/Plot 1150 m².

Setting : Close To Golf.
Orientation : South East, South.
Condition : Excellent.
Pool : Private.
Climate Control : Air Conditioning.
Views : Mountain, Golf, Pool.
Features : Covered Terrace, Fitted Wardrobes, Private Terrace, Storage Room, Utility Room, Ensuite Bathroom, Marble Flooring, Double Glazing.
Furniture : Part Furnished.
Kitchen : Fully Fitted.
Garden : Private, Landscaped.
Security : Entry Phone, Alarm System.
Category : Golf, Holiday Homes, Luxury.


Egenskaber

Climate control

  • A/C

Condition

  • Meget God

Features

  • Overdækket Terrasse
  • dresser-wardrobe
    Indbyggede Garderobeskabe
  • Privat Terrasse
  • dresser-drawers-5
    Pulterrum
  • home-improvement-12_1
    Vaskehus
  • En-Suite Badeværelse
  • Marmorgulv
  • Termoruder

Furniture

  • Delvist møbleret

Garden

  • Privat
  • Anlagt

Kitchen

  • Fuldt Udstyret

Orientation

  • Sydøst
  • Syd

Pool

  • Privat

Security

  • mobile-phone-blackberry-2
    Dørtelefon
  • Alarm

Setting

  • Nær Golf

Udsigt

  • Bjerge
  • Golf
  • Pool

Beliggende i

Købekraft

Beregn din månedlige afdrag på lån

Din forventede månedlige ydelse

Bliv forhåndsgodkendt

Bolig-udland samarbejder med Mortage Direct

Vi tilbyder vores kunder de bedst mulige boliglån til ejendomskøb i Spanien. Få det bedste spanske boliglån med Mortgage Direct.

Mere info

Købsomkostninger

Vores udgiftskalkulator giver et skøn over alle omkostninger forbundet med at købe et hus i Spanien. Brug kun disse tal som vejledning: De faktiske tal varierer afhængigt af ejendommen, ejendommens placering og den bank du vælger sammen med andre faktorer. Til det samlede beløb skal du tilføje dine afdrag på dit realkreditlån samt bankgebyrer, hvis din bank opkræver det.

Samlede udgifter

Du kan måske også lide disse boliger