Byggegrund til salg i Coin

Bolig ID: R4386667

€199,000

€/m2


0
0
soveværelser
0
Badeværelser
0
terrace
210
Grundareal

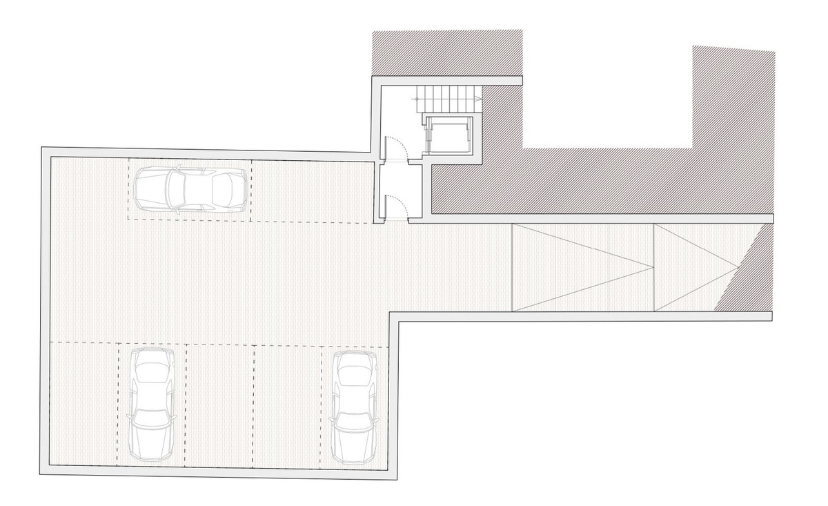
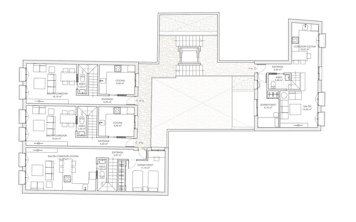
CENTRAL PLOT WITH PROJECT
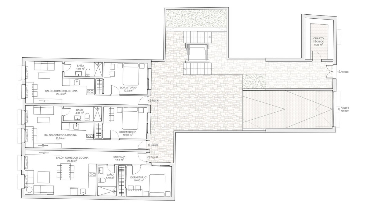
Plot for sale to build 7 houses, with distribution plans to be able to build it as soon as possible.
With parking in a very good area, central, near City Hall, squares.
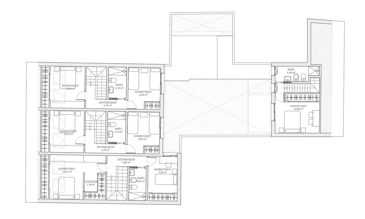
The project presented by architect distributed in (We can deliver project so you have idea and can carry out):

Three one-bedroom apartments with garage, brand new.
Three two-bedroom duplex apartments.
One three-room duplex apartment.


Egenskaber

Condition

  • NyByggeri

Orientation

  • Syd

Parking

  • Garage
  • Fælles

Setting

  • shanty-house-village-1
    Landsby
  • Nær Forretninger
  • Nær Skole

Udsigt

  • Byzone
  • Vej

Beliggende i

Købekraft

Beregn din månedlige afdrag på lån

Din forventede månedlige ydelse

Bliv forhåndsgodkendt

Bolig-udland samarbejder med Mortage Direct

Vi tilbyder vores kunder de bedst mulige boliglån til ejendomskøb i Spanien. Få det bedste spanske boliglån med Mortgage Direct.

Mere info

Købsomkostninger

Vores udgiftskalkulator giver et skøn over alle omkostninger forbundet med at købe et hus i Spanien. Brug kun disse tal som vejledning: De faktiske tal varierer afhængigt af ejendommen, ejendommens placering og den bank du vælger sammen med andre faktorer. Til det samlede beløb skal du tilføje dine afdrag på dit realkreditlån samt bankgebyrer, hvis din bank opkræver det.

Samlede udgifter

Du kan måske også lide disse boliger