Byggegrund til salg i San Pedro de Alcántara

Bolig ID: R3992548

€270,000

740 €/m2


365
0
soveværelser
0
Badeværelser
0
terrace
98
Grundareal

Fantastic Development Opportunity in the Heart of San Pedro Alcántara
We are pleased to offer for sale this attractive and fully licensed development project located in the vibrant town center of San Pedro Alcántara.
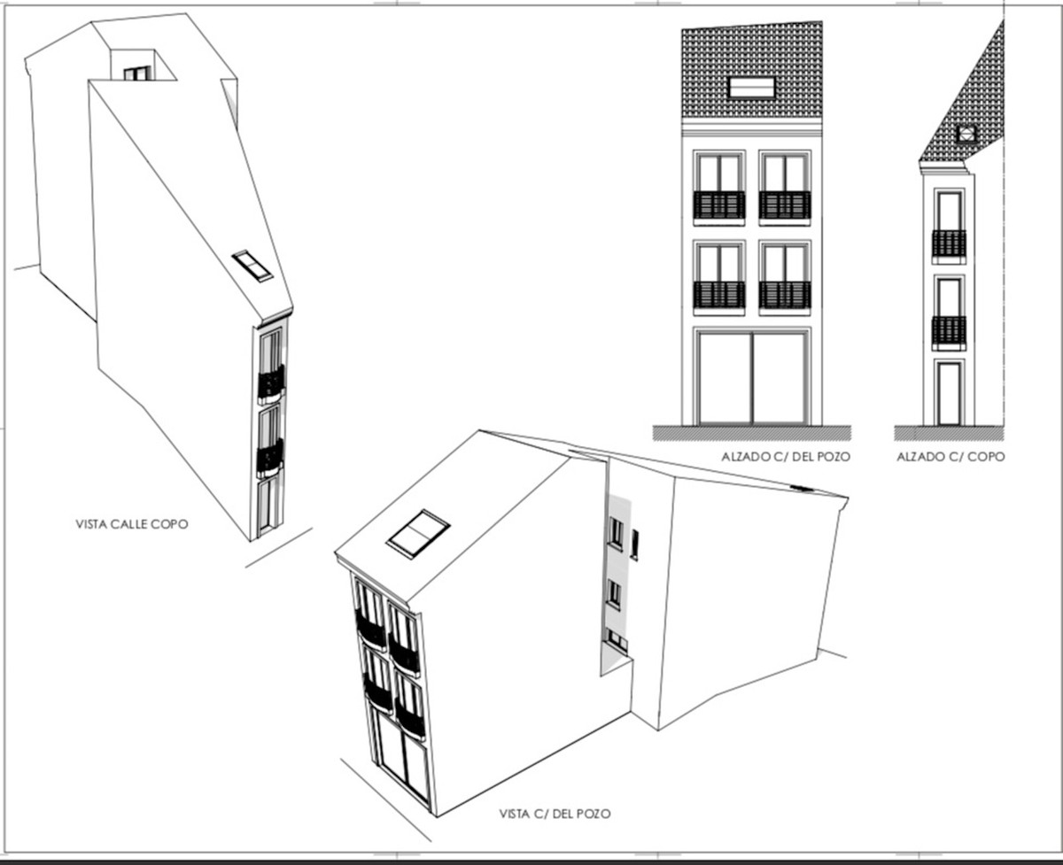
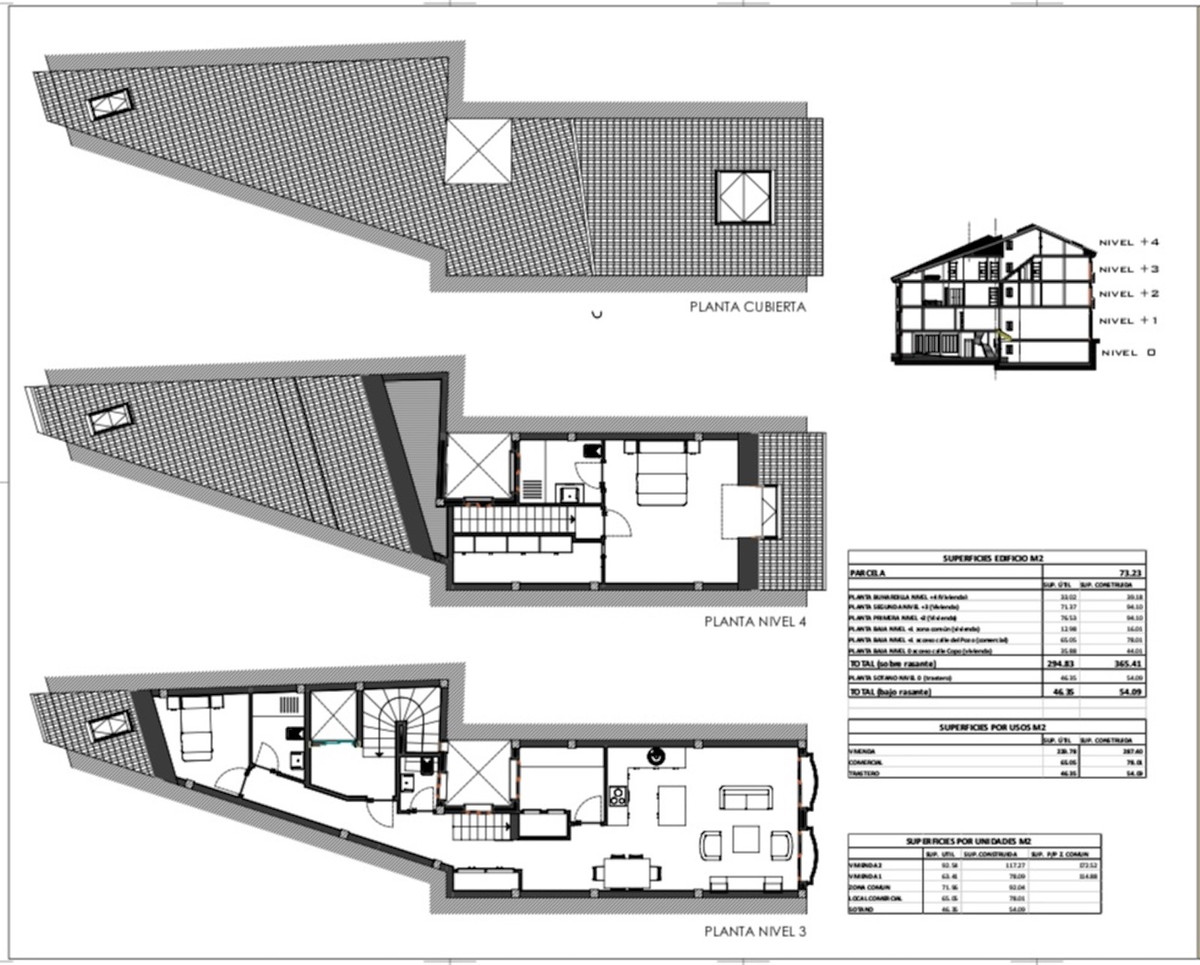
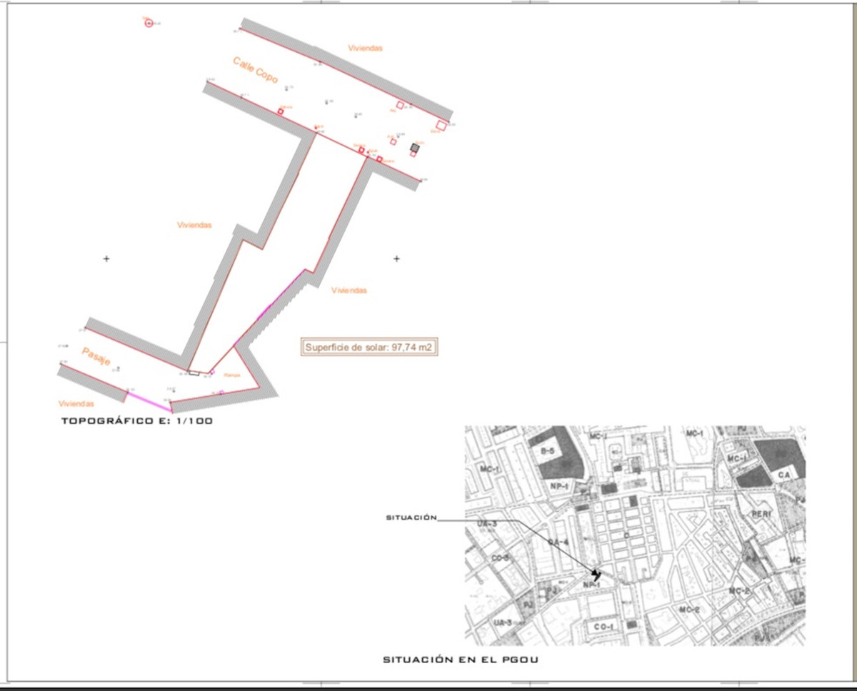
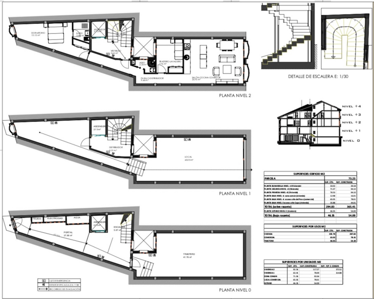
The plot measures 98 m² and comes with approved plans to construct a 3-storey building with a basement, totaling a built area of 365.41 m².
Project Details:
Ground Floor: Commercial unit of 78.01 m² with direct access to a terrace – ideal for retail or a café/restaurant.
Basement: 54.09 m², suitable for storage, technical room, or complementary use for the commercial space.
First Floor: Spacious 2-bedroom apartment of 78.09 m².
Second Floor & Attic: Stunning 3-bedroom duplex penthouse of 117.27 m² with a generous private terrace.
Common Areas (Staircase, Hallways, etc.): 92.04 m².
This is a rare opportunity to develop a centrally located, mixed-use building with great potential for both commercial and residential income. San Pedro Alcántara is a rapidly growing area, popular with both locals and tourists, just minutes from Marbella and Puerto Banús.
All licenses and planning permissions are in place – ready for immediate development.


Egenskaber

Orientation

  • Sydøst

Setting

  • shanty-house-village-1
    By
  • Nær Havet
  • Nær Skole

Udsigt

  • Byzone

Beliggende i

Købekraft

Beregn din månedlige afdrag på lån

Din forventede månedlige ydelse

Bliv forhåndsgodkendt

Bolig-udland samarbejder med Mortage Direct

Vi tilbyder vores kunder de bedst mulige boliglån til ejendomskøb i Spanien. Få det bedste spanske boliglån med Mortgage Direct.

Mere info

Købsomkostninger

Vores udgiftskalkulator giver et skøn over alle omkostninger forbundet med at købe et hus i Spanien. Brug kun disse tal som vejledning: De faktiske tal varierer afhængigt af ejendommen, ejendommens placering og den bank du vælger sammen med andre faktorer. Til det samlede beløb skal du tilføje dine afdrag på dit realkreditlån samt bankgebyrer, hvis din bank opkræver det.

Samlede udgifter

Du kan måske også lide disse boliger