Villa til salg i Rafol de Almunia

Bolig ID: PEG-011175

€538,000

2,940 €/m2


183
3
soveværelser
4
Badeværelser
840
Grundareal

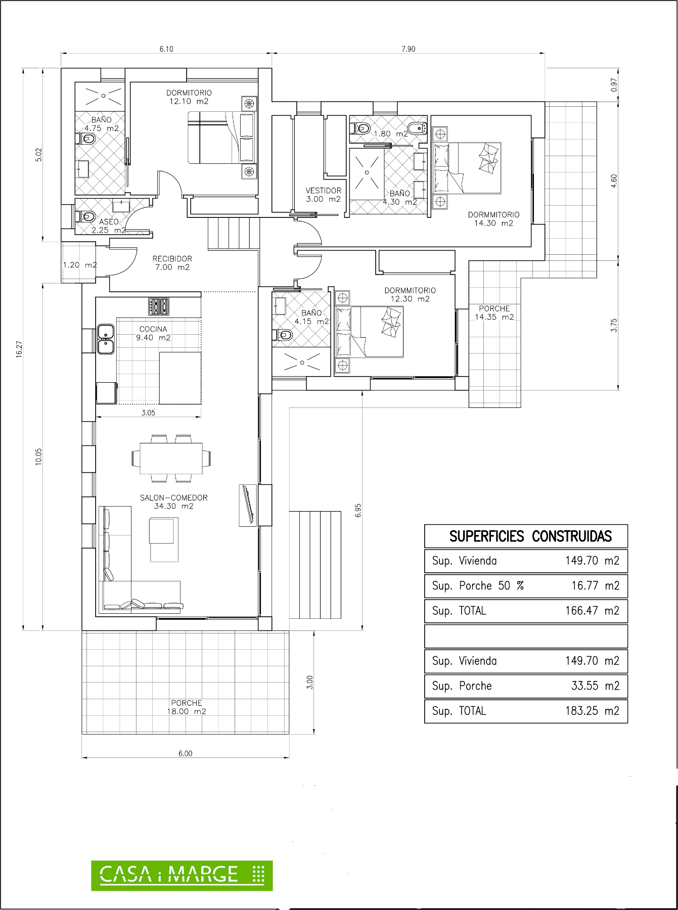
Modern villa with spectacular minimalist design located on a parcel are amazing seaviews in Residencial l'Almunia Rafol. This construction project will be built on a plot of 840 m2. The House has 183,25 m2 and is divided into entrance hall, living/dining room with large windows and direct access to the terrace, kitchen open to the living room, 3 bedrooms each with en suite bathroom and closet, also the main room of the House has dressing room, toilet service. The price also includes the required elevation for the location of the villa, a terrace high with a total of 56,65 m2 all she surrounded with glass and stainless steel handrail. There is also an 8 x 4 pool with infinity, ladder work, focus, and all the necessary equipment. Also included in the price the rush of water and light, the realization of a parking lot of the street-level concrete, wall stone of 60 cm at linde with the street and car door and pedestrian street, and staircase from the ground to the level of an outdoor terrace. Also included are high qualities of construction to the design of the House. Also includes all the necessary documentation as license, project drawn up by an architect, ten-year insurance etc... Since it is a project the client may vary levels, the qualities of construction or the materials chosen. Rafol de Almunia, and particularly urbanization residential l'Almunia is located just 15 minutes from beautiful sandy beaches, and 15 minutes from Ondara where is located the largest shopping center in the area. The airports of Alicante and Valencia are 1 hour away.

Egenskaber

Setting

  • Nær Forretninger
  • Nær Havet
  • Nær Marina

Beliggende i

Købekraft

Beregn din månedlige afdrag på lån

Din forventede månedlige ydelse

Bliv forhåndsgodkendt

Bolig-udland samarbejder med Mortage Direct

Vi tilbyder vores kunder de bedst mulige boliglån til ejendomskøb i Spanien. Få det bedste spanske boliglån med Mortgage Direct.

Mere info

Købsomkostninger

Vores udgiftskalkulator giver et skøn over alle omkostninger forbundet med at købe et hus i Spanien. Brug kun disse tal som vejledning: De faktiske tal varierer afhængigt af ejendommen, ejendommens placering og den bank du vælger sammen med andre faktorer. Til det samlede beløb skal du tilføje dine afdrag på dit realkreditlån samt bankgebyrer, hvis din bank opkræver det.

Samlede udgifter

Du kan måske også lide disse boliger