Lejlighed til salg i Palma De Mallorca

Bolig ID: MPG-945

€1,987,000

3,290 €/m2


604
10
soveværelser
7
Badeværelser
132
Grundareal

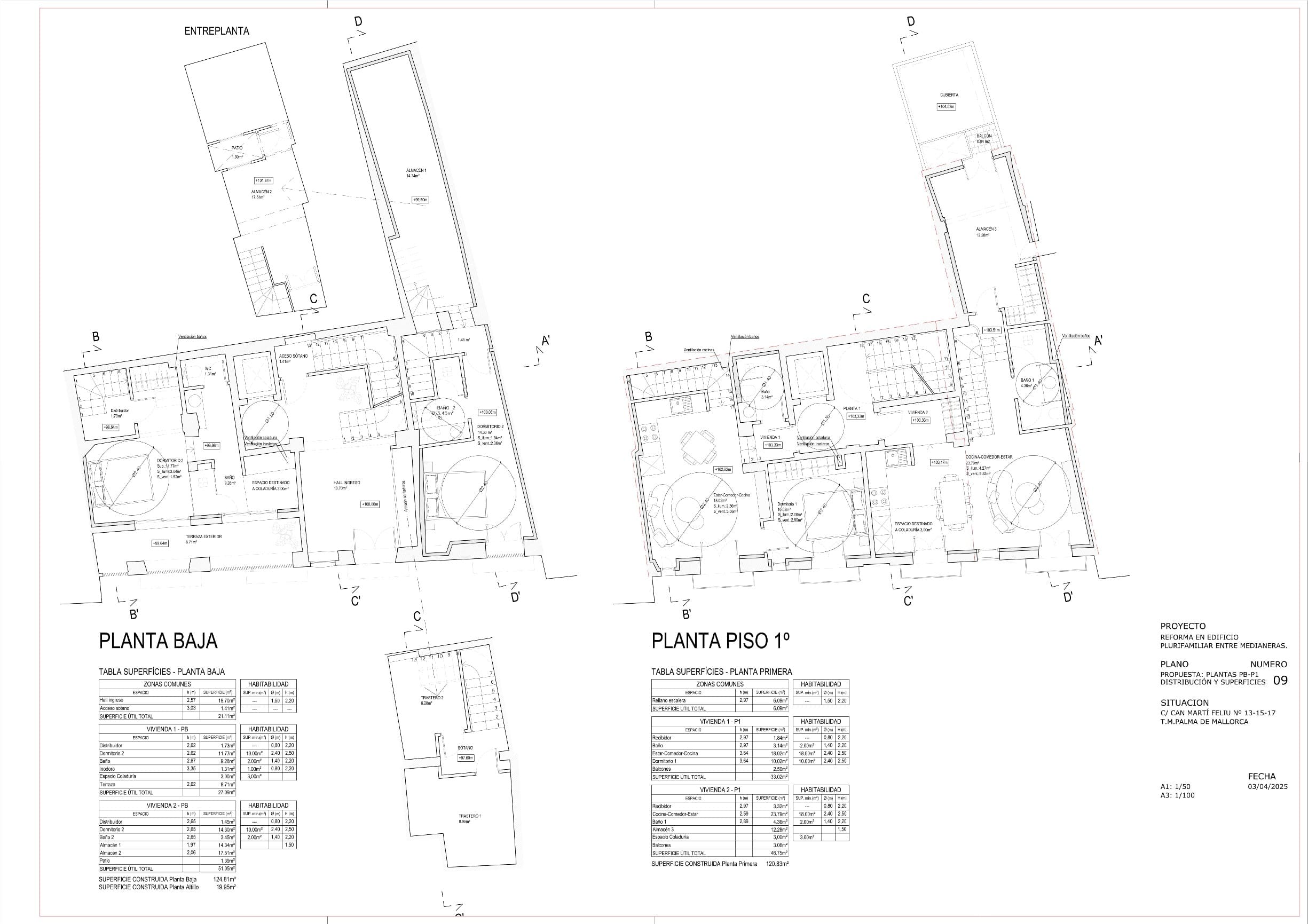
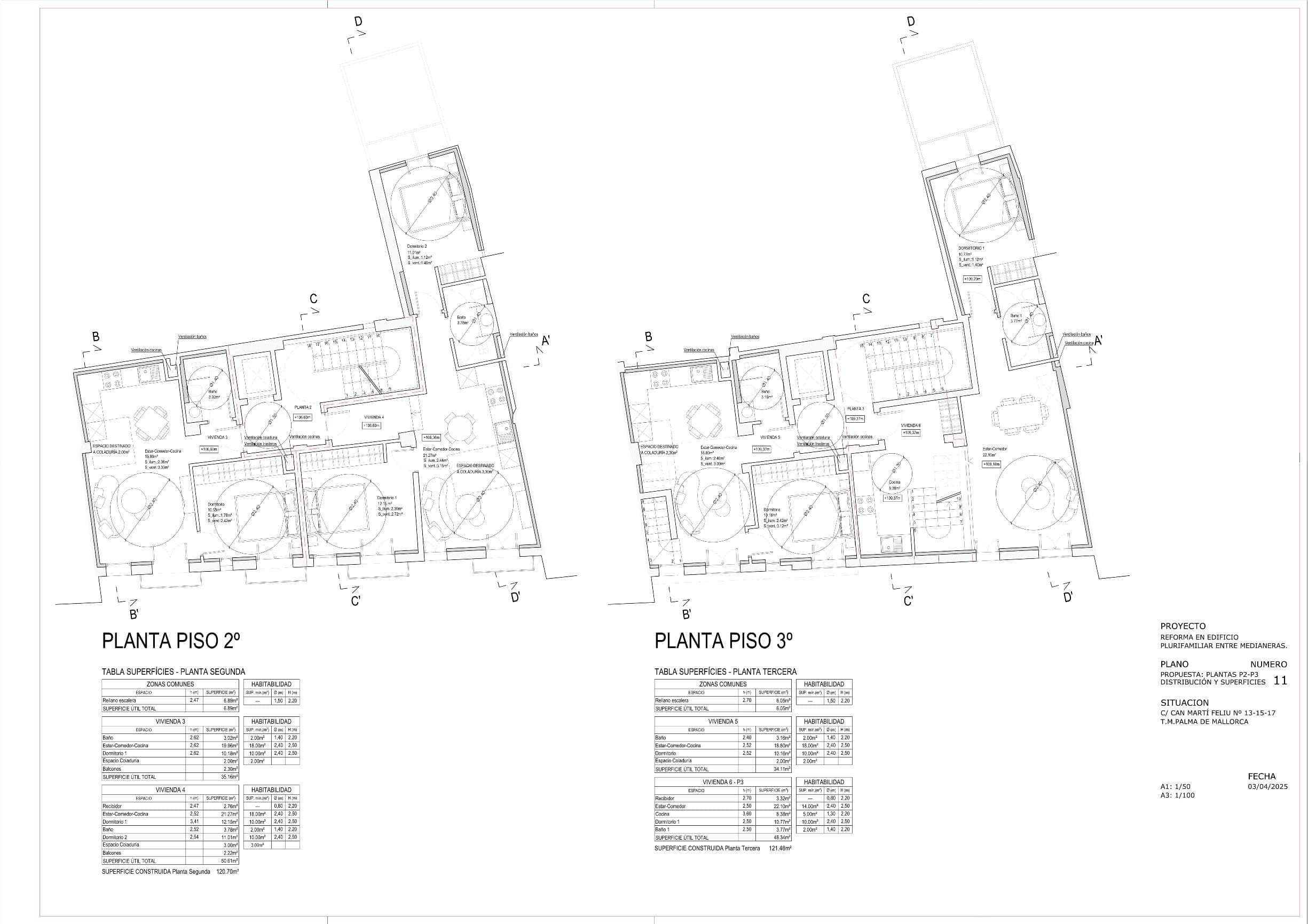
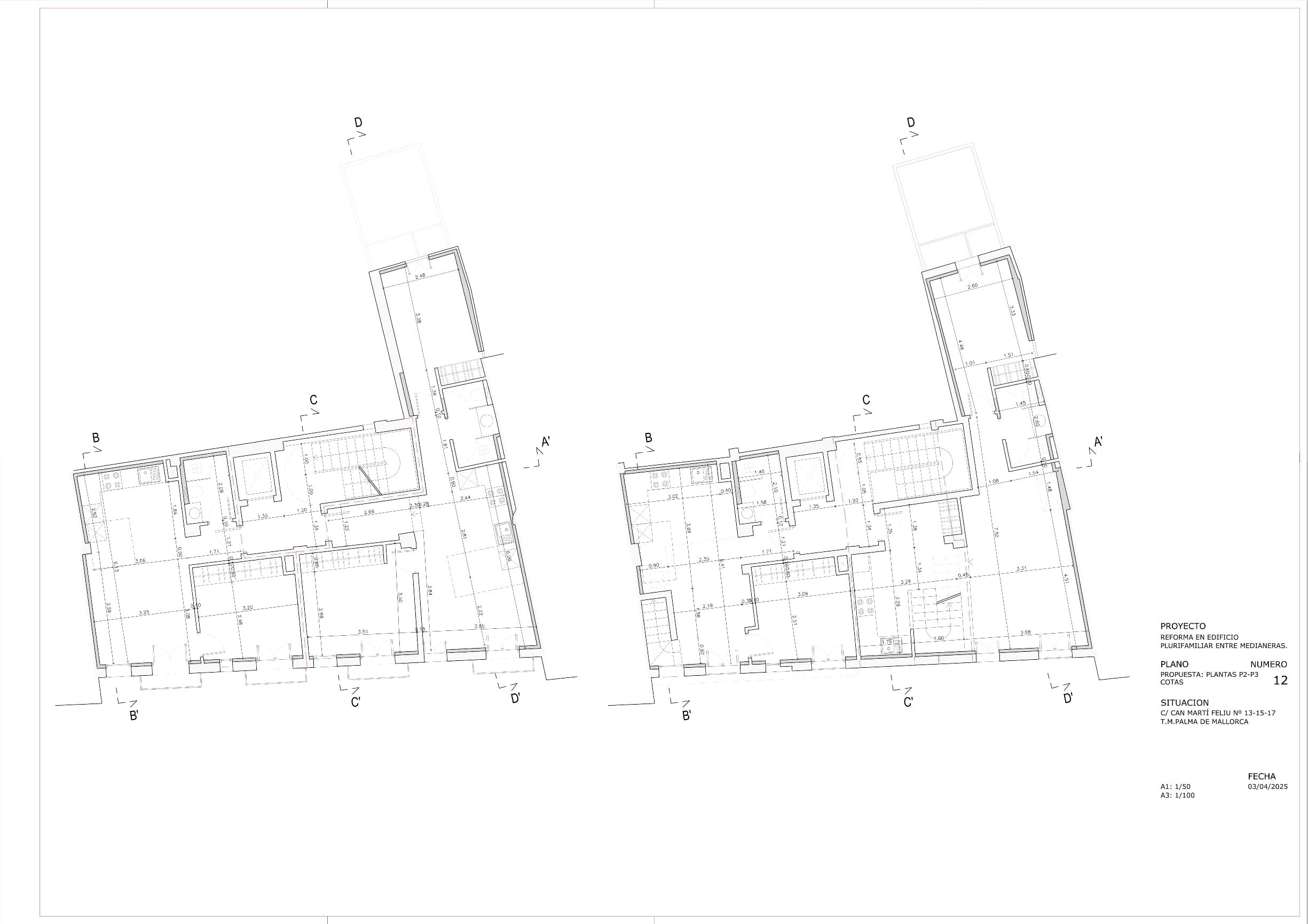
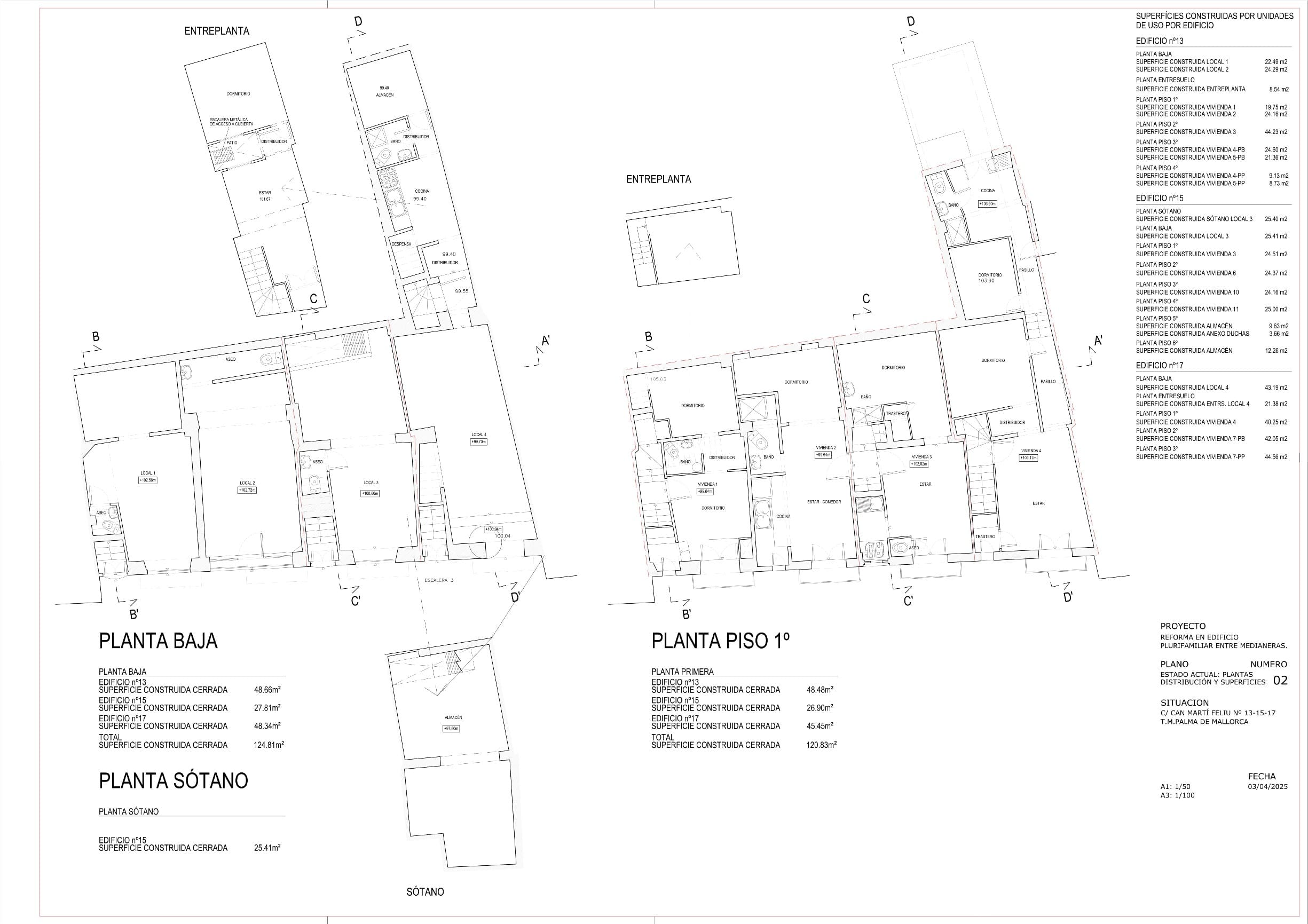
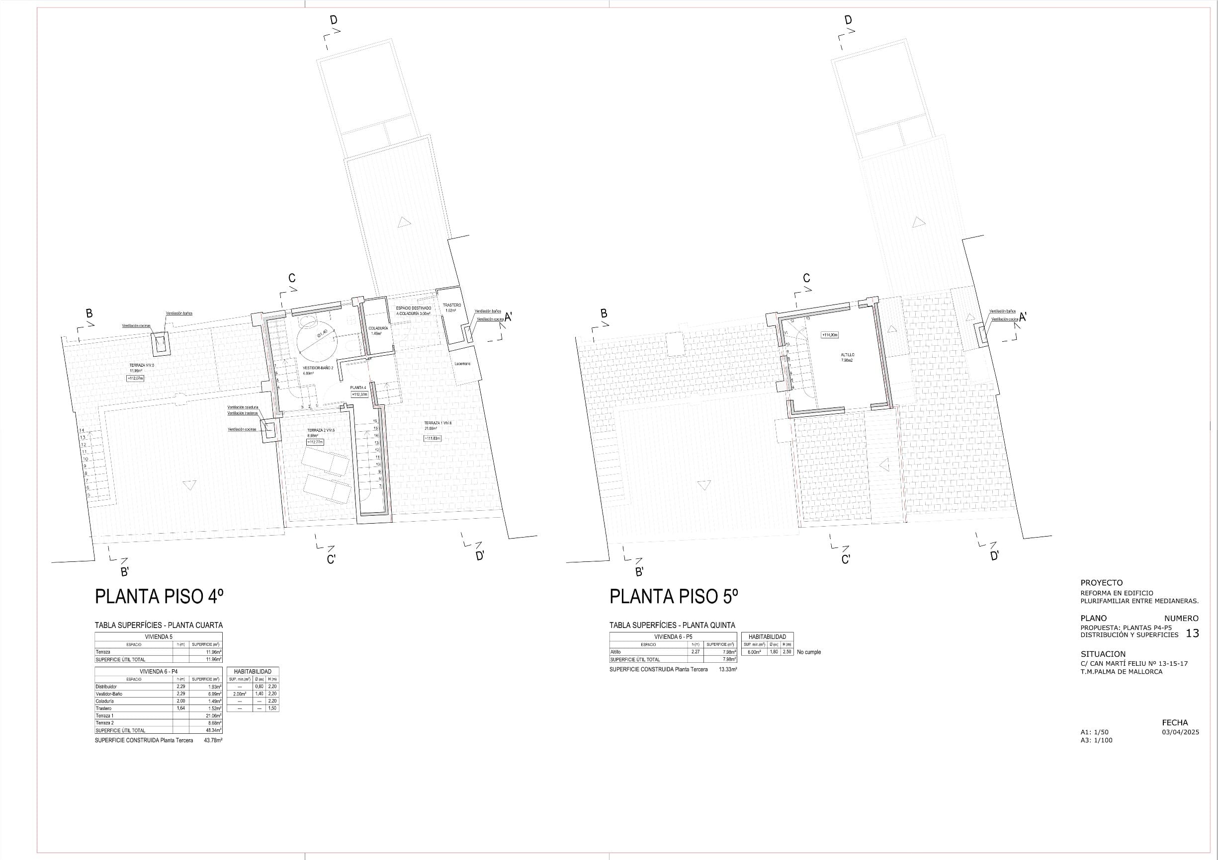
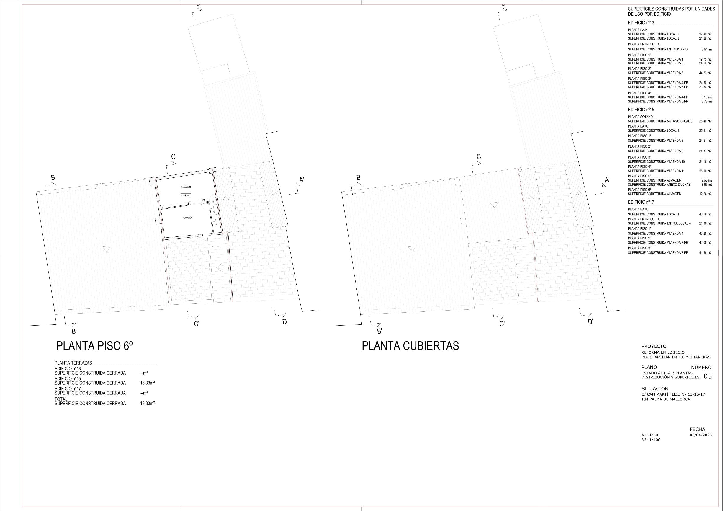
Three buildings for sale in the heart of Palma de Mallorca's historic centre, with a project for six luxury apartments with elevators. An investment opportunity in the very centre of Palma: three adjacent buildings located on a quiet street, just steps from Plaza Mayor and Plaza del Banc de l'Oli, and less than five minutes’ walk from Plaza España, three of the city's most iconic landmarks within the northern part of the El Casco Antiguo the historic centre of the city. The complete preliminary and final design plans are included, outlining the comprehensive renovation of the buildings to create six luxury apartments with elevators, totalling 585 m² of built area. The plans show the current state, layout, and future possibilities. Contact us for more information or to schedule a visit to these three buildings for sale in Palma de Mallorca. Palma de Mallorca is the capital of Mallorca and one of the most popular summer and winter short break destinations in Europe. The city is divided in to five districts, and also administers the island of Cabrera which is a marine reserve of international importance.

Egenskaber

Features

  • bus-2
    Tæt På Transport

Setting

  • Nær Forretninger

Beliggende i

Købekraft

Beregn din månedlige afdrag på lån

Din forventede månedlige ydelse

Bliv forhåndsgodkendt

Bolig-udland samarbejder med Mortage Direct

Vi tilbyder vores kunder de bedst mulige boliglån til ejendomskøb i Spanien. Få det bedste spanske boliglån med Mortgage Direct.

Mere info

Købsomkostninger

Vores udgiftskalkulator giver et skøn over alle omkostninger forbundet med at købe et hus i Spanien. Brug kun disse tal som vejledning: De faktiske tal varierer afhængigt af ejendommen, ejendommens placering og den bank du vælger sammen med andre faktorer. Til det samlede beløb skal du tilføje dine afdrag på dit realkreditlån samt bankgebyrer, hvis din bank opkræver det.

Samlede udgifter

Du kan måske også lide disse boliger