Byhus/Rækkehus til salg i Binissalem

Bolig ID: MPG-938

€578,000

3,705 €/m2


156
3
soveværelser
2
Badeværelser
120
Grundareal

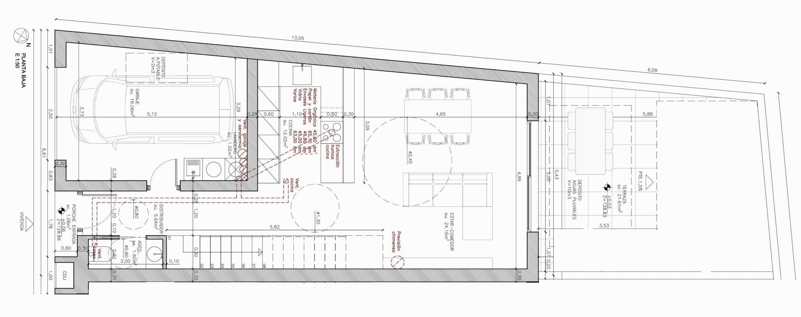
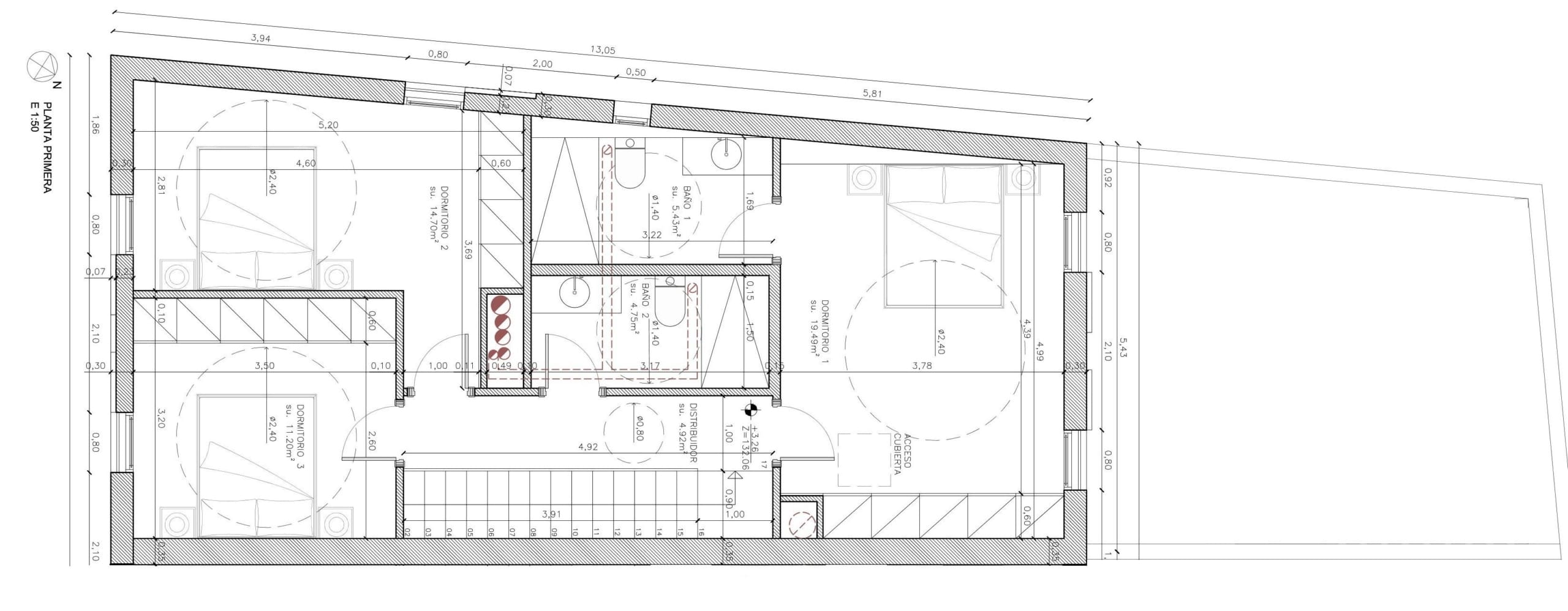
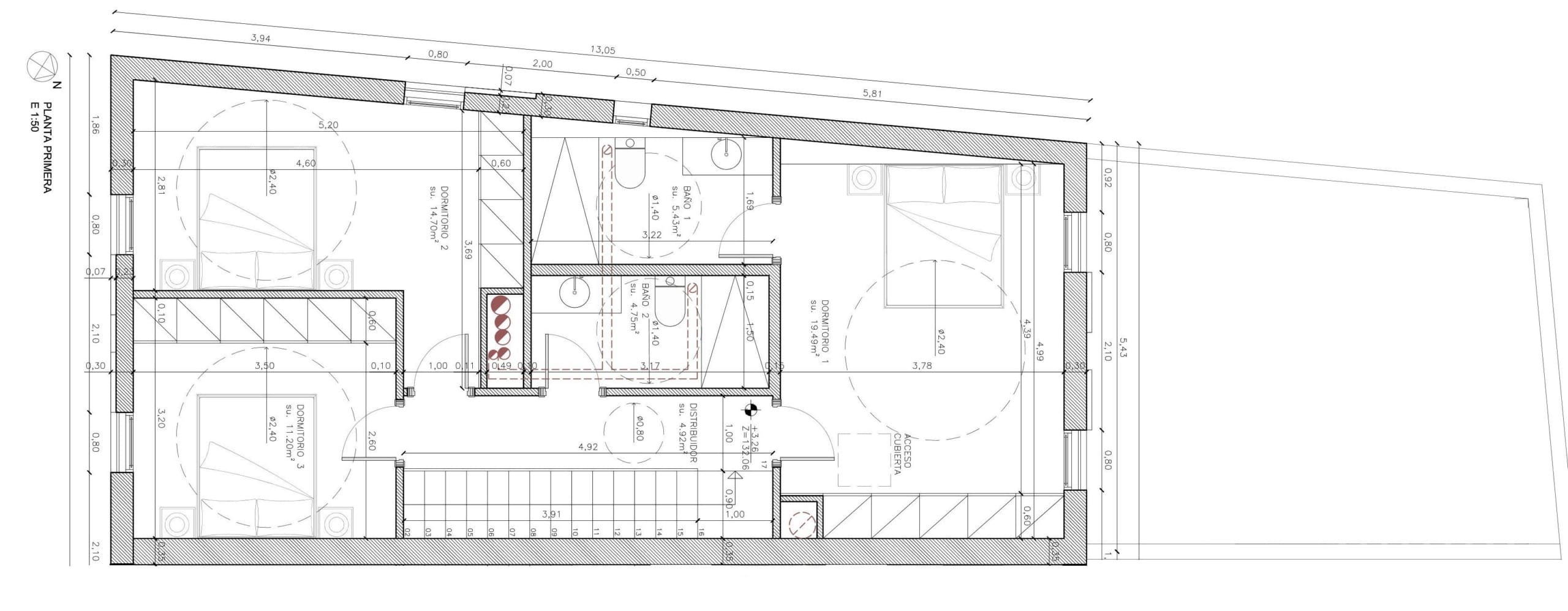
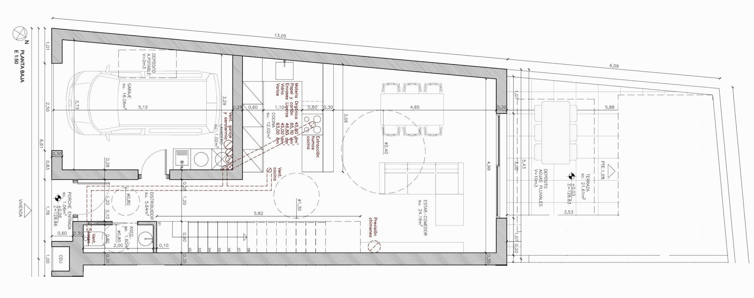
For Sale in Binissalem New Build House Three Bedrooms Two Bathrooms. Due for completion in 2026 the house has been designed to maximise its environmental aspects with a high level of thermal insulation for better energy efficiency, acoustic insulation for greater comfort and hot water by Aerothermia. The buyers will receive a new home designed to reduce living costs and offer options to add full air-conditioning and a charging point for an electric vehicle. On the lower floor the open plan kitchen with the lounge dining area creates a light and bright space filled with light from the double doors to the patio garden. The private garage is spacious enough for a family car and has plenty of storage for all those items which a family naturally accumulates. The downstairs guest bathroom is ideal for a busy family that likes to entertain. On the first floor each of the double bedrooms is of a good size and has built in wardrobes, the master bedroom with its own ensuite bathroom and views to the patio garden is the ideal sanctuary after a busy day. If you would like to visit the house in construction please contact us, we will be happy to organize a visit and provided you with all of the details of the plans and installations. Distribution Ground Floor Porch 1.06m2 Guest Toilet 1.60m2 Garage 16.06m2 Kitchen 12.02m2 Lounge Diner 24,16m2 Terrace 21.61m2 4.99m Wide Double Patio Doors First Floor Master Bedroom 19.49m2 Master Bedroom En Suite 5.43m2 Family Bathroom 4.75m2 Double Bedroom 1º 14.70m2 Double Bedroom 2º 11.20m2 Binissalem is a charming and authentic Mallorcan village located in the Raiguer region, halfway between Palma and the Serra de Tramuntana. It is best known as the wine capital of Mallorca, home to the island’s prestigious Denominació d’Origen (DO) Binissalem wine appellation. With its golden stone architecture, quiet streets, bodegas, and strong sense of community, Binissalem offers a relaxed lifestyle rich in culture and tradition. Binissalem lies about 25 minutes by car or train from Palma, with excellent access via the Ma-13 motorway and the train line connecting Palma to Inca and Sa Pobla. Its central location makes it ideal for exploring the entire island, especially the inland and Tramuntana regions. Life in Binissalem is a mix of rural charm and modern convenience. It has: A tight-knit community Shops, restaurants, bars, and everything needed for daily life A countryside feel without being isolated. Plenty of cultural events and traditions year-round. Hiking and cycling routes in nearby countryside and foothills. A balance between authentic village life and convenience of a central location with access to Palma de Mallorca.

Egenskaber

Climate control

  • A/C

Features

  • bus-2
    Tæt På Transport
  • En-Suite Badeværelse
  • dresser-wardrobe
    Indbyggede Garderobeskabe

Parking

  • Privat
  • Garage

Setting

  • Nær Forretninger

Beliggende i

Købekraft

Beregn din månedlige afdrag på lån

Din forventede månedlige ydelse

Bliv forhåndsgodkendt

Bolig-udland samarbejder med Mortage Direct

Vi tilbyder vores kunder de bedst mulige boliglån til ejendomskøb i Spanien. Få det bedste spanske boliglån med Mortgage Direct.

Mere info

Købsomkostninger

Vores udgiftskalkulator giver et skøn over alle omkostninger forbundet med at købe et hus i Spanien. Brug kun disse tal som vejledning: De faktiske tal varierer afhængigt af ejendommen, ejendommens placering og den bank du vælger sammen med andre faktorer. Til det samlede beløb skal du tilføje dine afdrag på dit realkreditlån samt bankgebyrer, hvis din bank opkræver det.

Samlede udgifter

Du kan måske også lide disse boliger