Landhus til salg i Algaida

Bolig ID: MPG-924

€380,000

866 €/m2


439
3
soveværelser
3
Badeværelser
17076
Grundareal

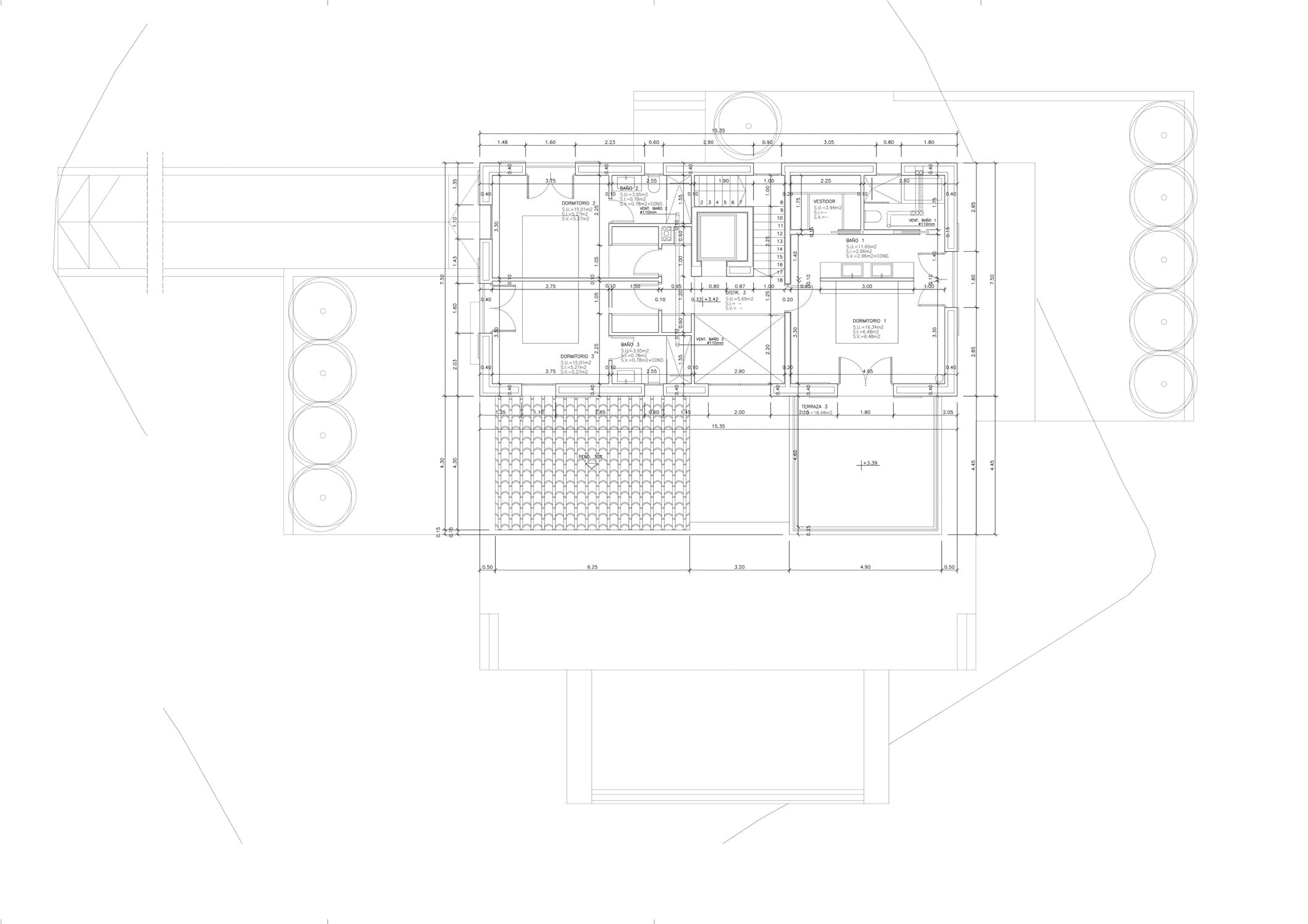
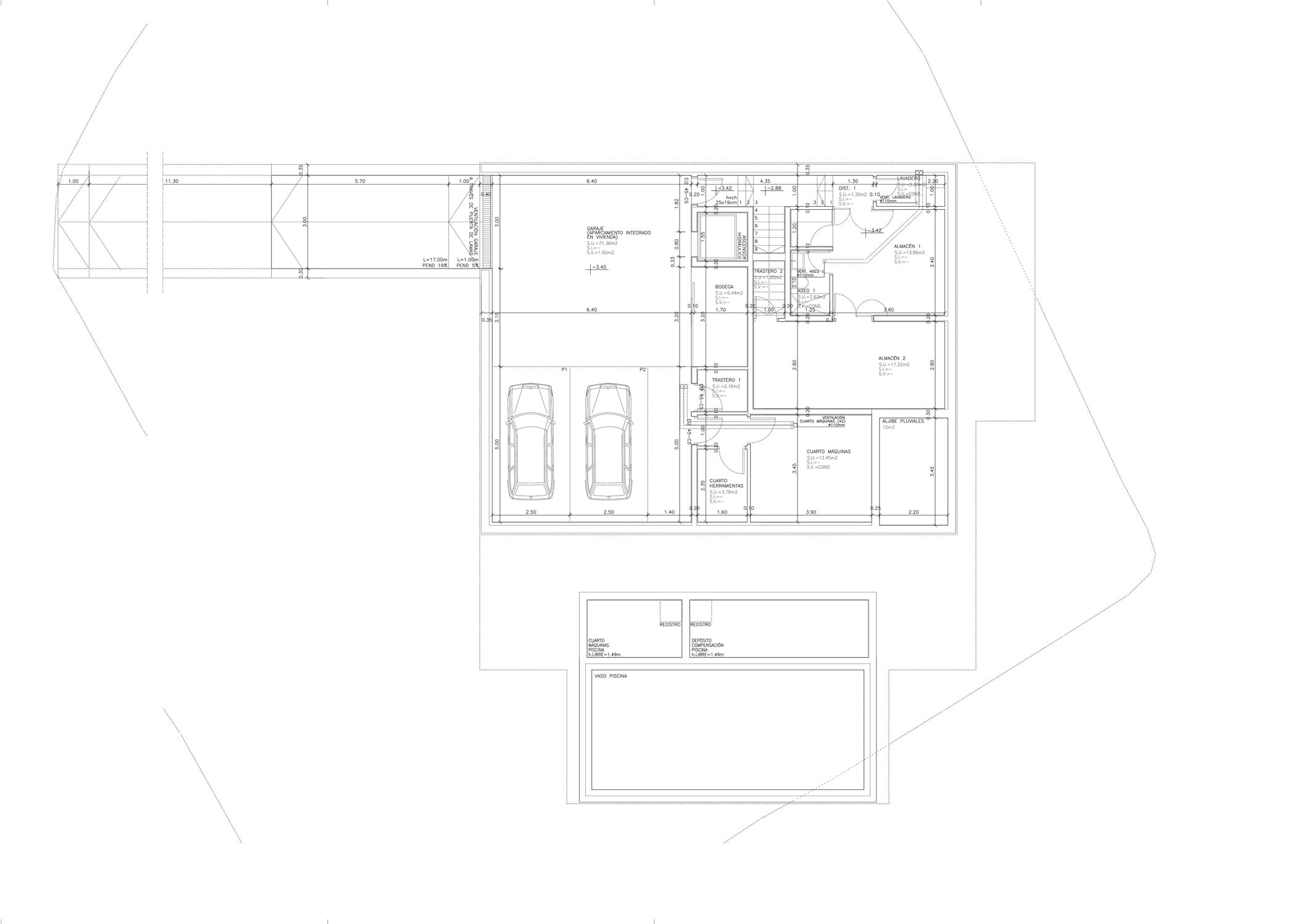
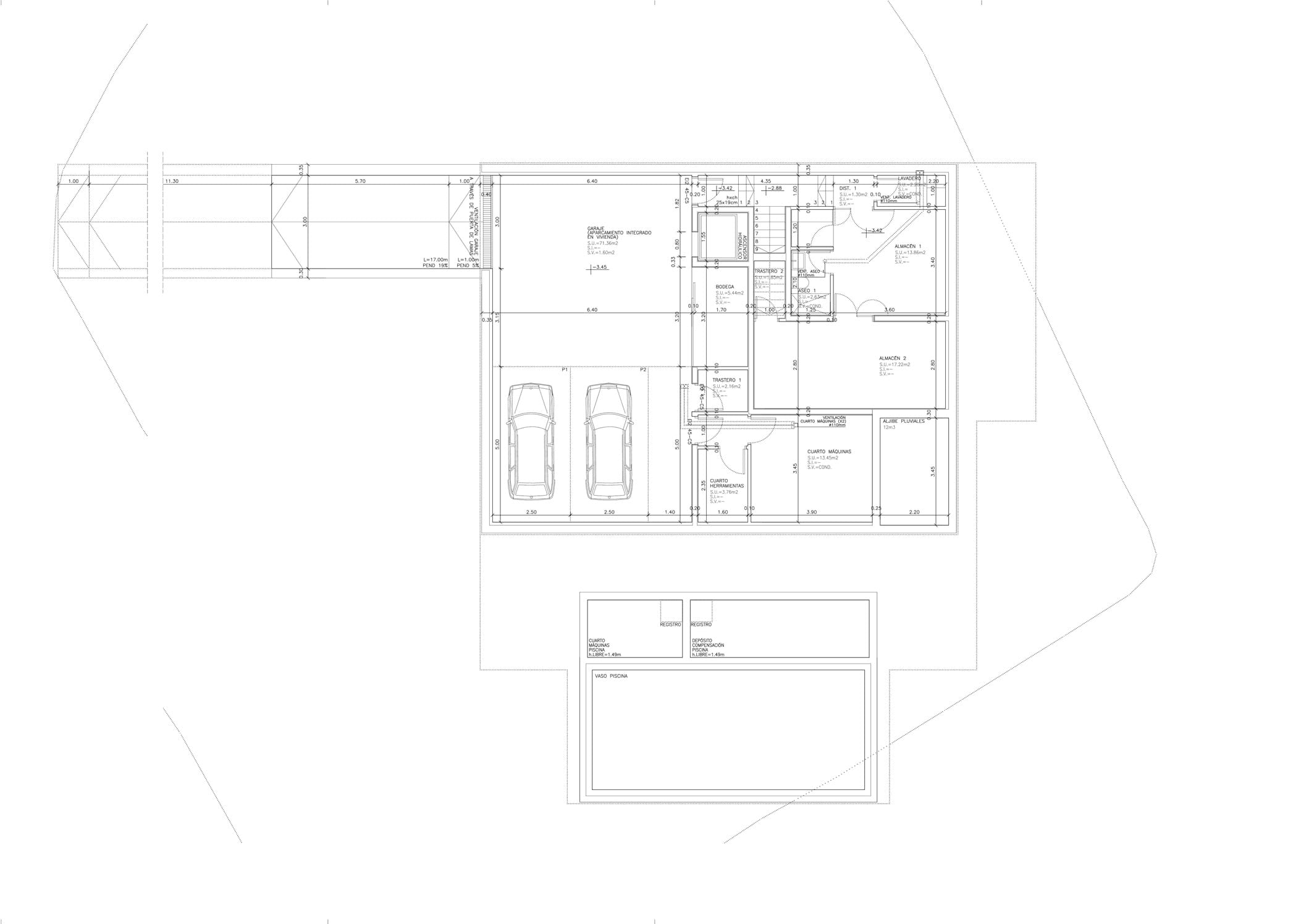
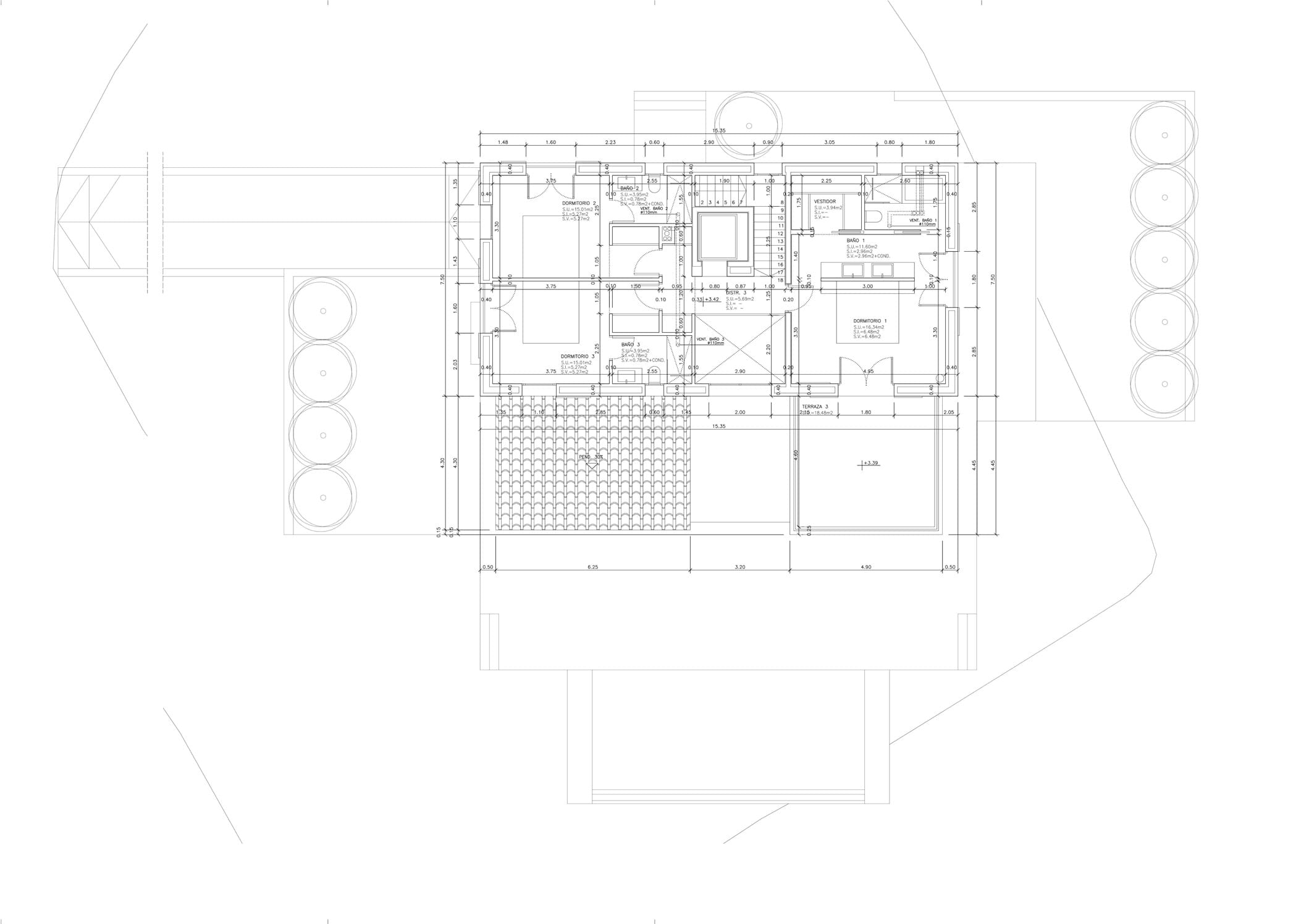
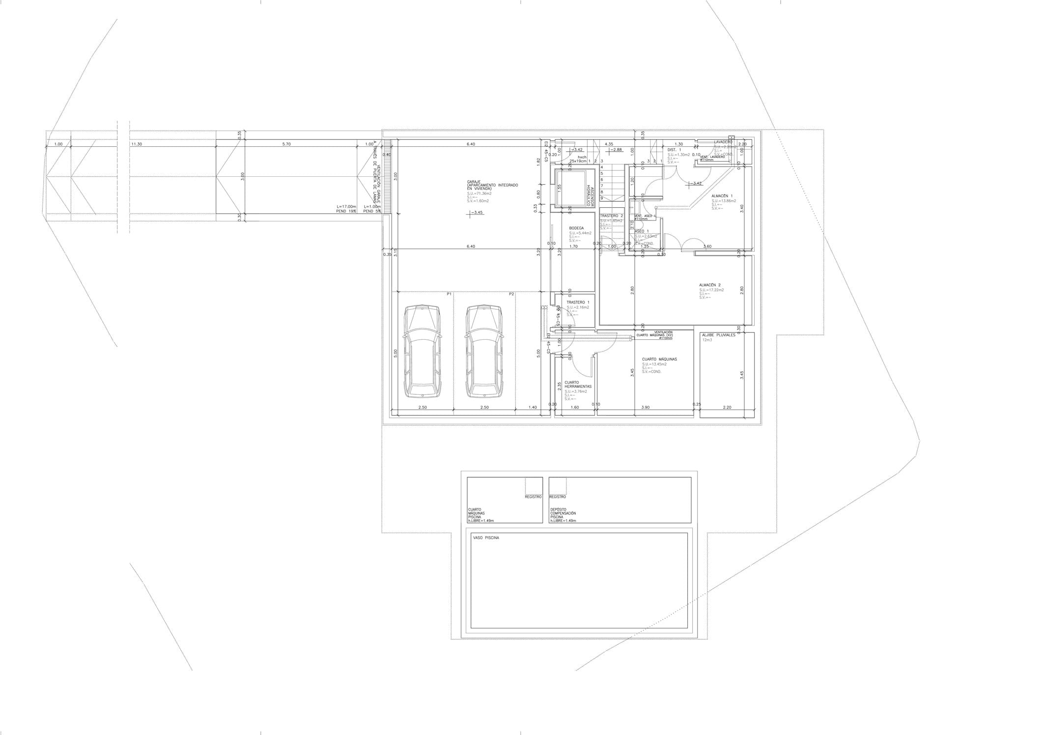
Finca project for sale between Algaida and Montuiri. On a plot of land of 17,076 m2 in a highly sought after area between Algaida and Montuiri with unobstructed views and good road access. Sold with a basic project for a rural house with a total constructed area of 439m2 with two storeys, ground floor and first floor, a large terrace and a swimming pool and basement with double garage and bodega. The project is for a three bedroom, three bathroom property distributed as follows. Areas House Basement Total Area 183m2: Parking Ramp 17m2 - Garage 71m2- Bodega 5m2- Landry Room 13m2- Storage Room 17m2- Guest Toilet 2m2 Ground Floor 150m2: Kitchen 14m2- Dining Room 17m2- Terrace 12m2- Guest Bathroom 2m2- Lounge 33m2- Garden Room 16m2 First Floor 150m2: Bedroom One 16m2- Bathroom One 11m2- Dressing Room 4m2- Private Terrace 18m2 Bedroom Two 15m2- Bathroom Two 4m2 Bedroom Three 15m2- Bathroom Three 4m2 Exterior Swimming Pool 35m2- Swimming Pool Terrace 84m2 Total Area 439m2 Plot 17076m2 The land and project are offered for sale at this price for the buyer to complete the final details of the project and the construction.  Detailed plans are available, and there is a provisional outline of the full details of all of the installations including construction materials, plumbing and electrical. The property has been designed to included, underfloor heating, full double glazing, full air conditioning, water deposits both rain water and drinking water, solar panels and a completely enclosed plot with an entrance to the driveway and a garden wall built from Santanyí stone. Just 20 minutes from the airport and less than 25 minutes from the capital it’s a unique opportunity to purchase the project which has been designed as a traditional country residence with a modern interior at a very reasonable price. Contact Us, For more information about this finca project for sale in Algaida Mallorca. Algaida, is a small town in the countryside of the Pla de Mallorca in the central region of Mallorca in the south east of the island, and it includes the smaller communities of Pina and Randa. It is well connected to Palma de Mallorca and the airport with a 20 minute drive by motorway. The town is small and rural with a population of about 6,000.

Egenskaber

Climate control

  • A/C

Features

  • En-Suite Badeværelse
  • home-improvement-12_1
    Vaskehus
  • Privat Terrasse

Parking

  • Garage
  • Privat

Pool

  • Private pool

Beliggende i

Købekraft

Beregn din månedlige afdrag på lån

Din forventede månedlige ydelse

Bliv forhåndsgodkendt

Bolig-udland samarbejder med Mortage Direct

Vi tilbyder vores kunder de bedst mulige boliglån til ejendomskøb i Spanien. Få det bedste spanske boliglån med Mortgage Direct.

Mere info

Købsomkostninger

Vores udgiftskalkulator giver et skøn over alle omkostninger forbundet med at købe et hus i Spanien. Brug kun disse tal som vejledning: De faktiske tal varierer afhængigt af ejendommen, ejendommens placering og den bank du vælger sammen med andre faktorer. Til det samlede beløb skal du tilføje dine afdrag på dit realkreditlån samt bankgebyrer, hvis din bank opkræver det.

Samlede udgifter

Du kan måske også lide disse boliger