Land til salg i Marratxí

Bolig ID: MPG-826LP

€1,200,000

2,817 €/m2


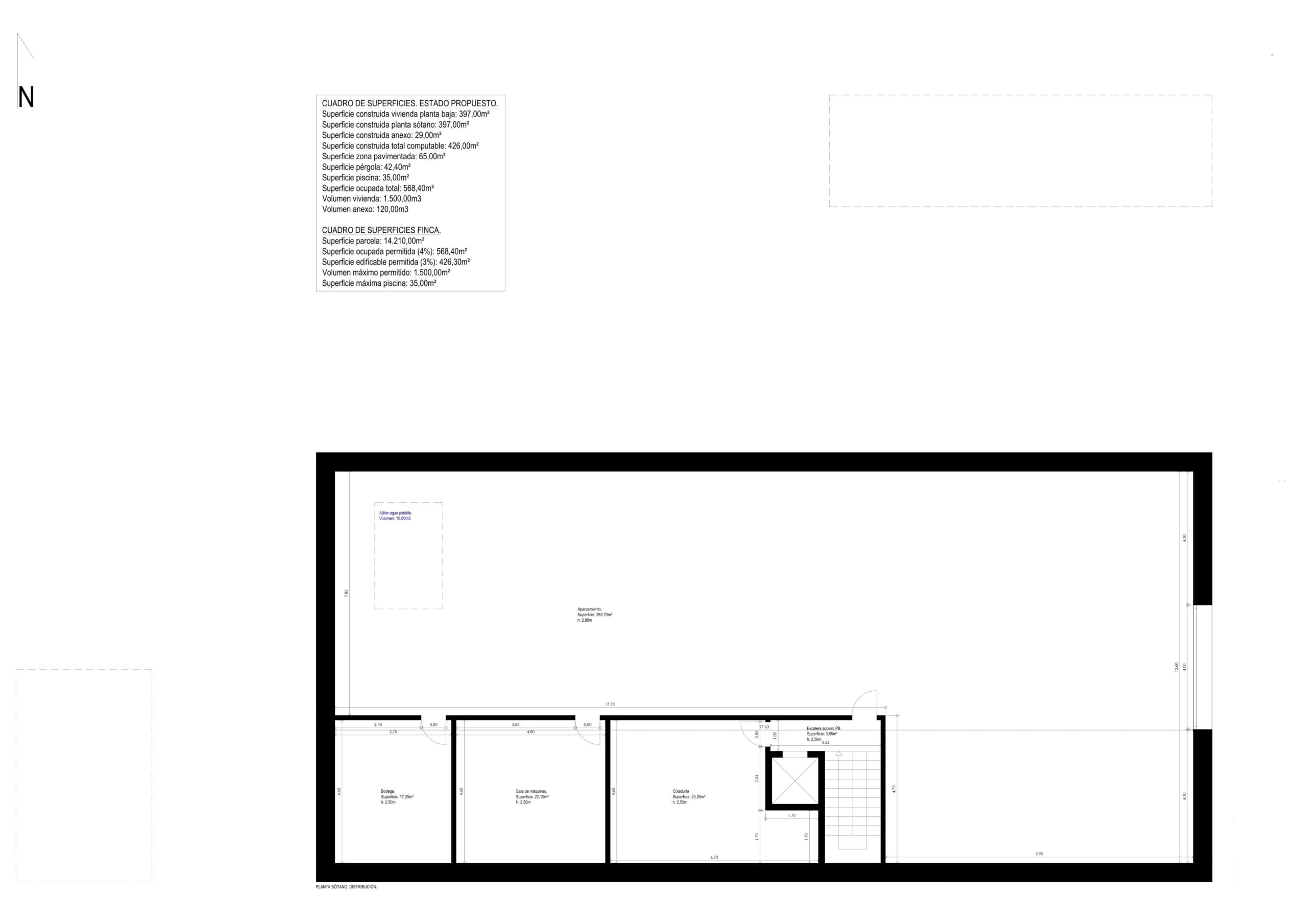
426
14210
Grundareal

Land for sale in Mallorca with a project for a villa of 426m2.   This a project for a luxurious residence which has just be granted full planning permission to build in the picturesque area of Marratxinet, one of Marratxí’s most exclusive neighbourhoods, this tranquil plot provides breath taking panoramic views. This stunning home features a design that beautifully merges modern sophistication with a respect for the surrounding natural landscape, offering a lifestyle like no other. The centre piece of this rural plot a spacious and comfortable villa of 426m2 with an open plan living space of 126m2 with a double height vaulted ceiling of 12.6m2 with a lounge and kitchen dinner which is filled with sun light from the pool and garden surrounding the house. In an adjacent wing of the house there are six double bedrooms each with an ensuite bathroom and a dressing room or fitted wardrobes. Below a huge basement which has a parking area of 263,70m2 with a 17,25m2, wine cellar and 25,90m2 utility room. A 29m2 annex which offers the buyer the option of seventh bedroom with an ensuite bathroom or a private office or an artist’s studio. For more information, we have detailed plans and descriptions of installations and finishes please contact us. Marratxinet the original foundation agricultural settlement of Marratxí. The municipality takes its name from this small hamlet, but as the agricultural income declined in the middle of the 19th century the administration of the municipality moved to the more wealth settlements of Sa Cabaneta and Marratxi. The original village remains as a gem of traditional Mallorcan architecture along one street called Sa Font.

Egenskaber

Pool

  • Private pool

Beliggende i

Købekraft

Beregn din månedlige afdrag på lån

Din forventede månedlige ydelse

Bliv forhåndsgodkendt

Bolig-udland samarbejder med Mortage Direct

Vi tilbyder vores kunder de bedst mulige boliglån til ejendomskøb i Spanien. Få det bedste spanske boliglån med Mortgage Direct.

Mere info

Købsomkostninger

Vores udgiftskalkulator giver et skøn over alle omkostninger forbundet med at købe et hus i Spanien. Brug kun disse tal som vejledning: De faktiske tal varierer afhængigt af ejendommen, ejendommens placering og den bank du vælger sammen med andre faktorer. Til det samlede beløb skal du tilføje dine afdrag på dit realkreditlån samt bankgebyrer, hvis din bank opkræver det.

Samlede udgifter

Du kan måske også lide disse boliger