Villa til salg i Ses Salines

Bolig ID: MPG-796

€2,800,000

7,778 €/m2


360
4
soveværelser
4
Badeværelser
14799
Grundareal

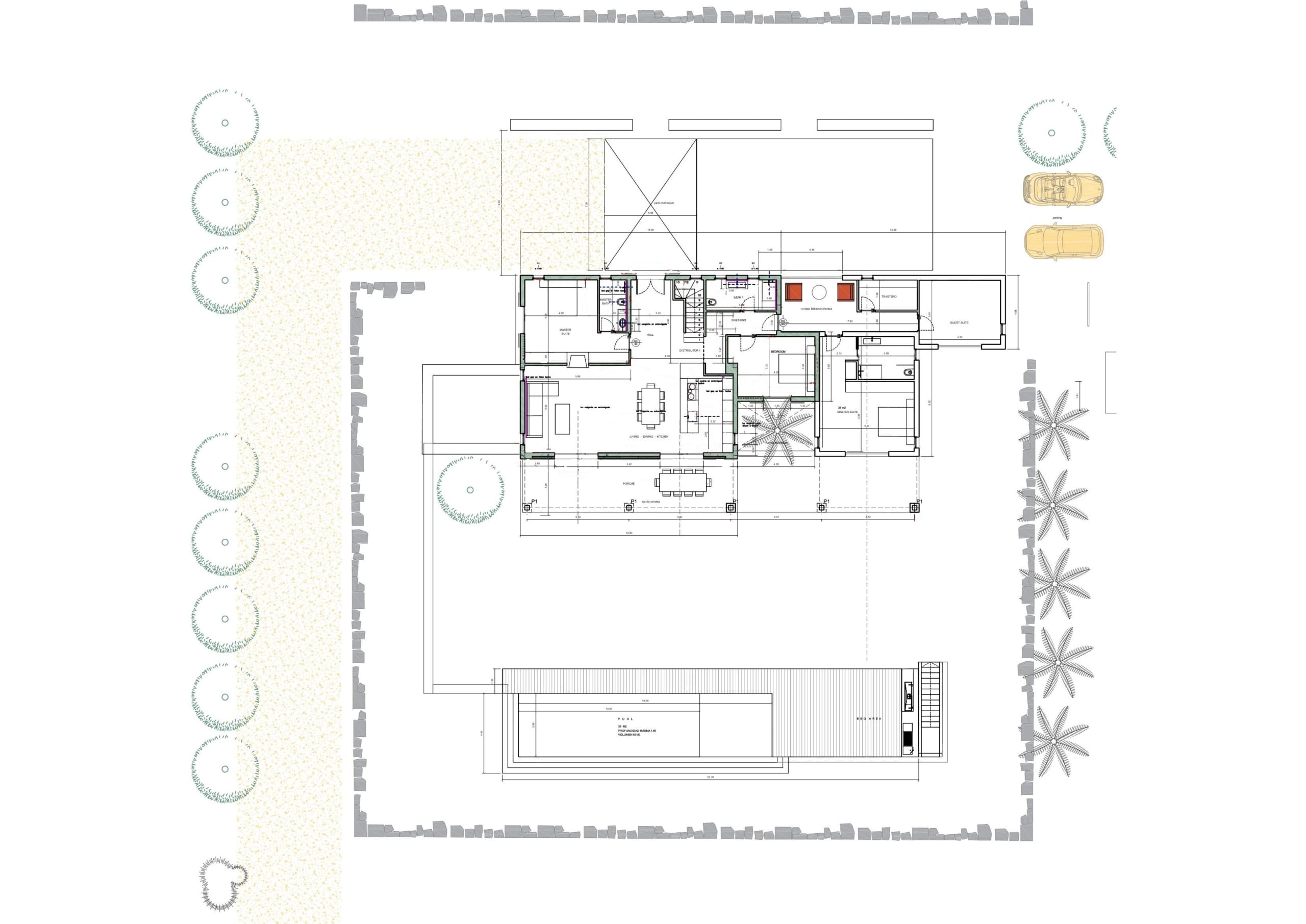
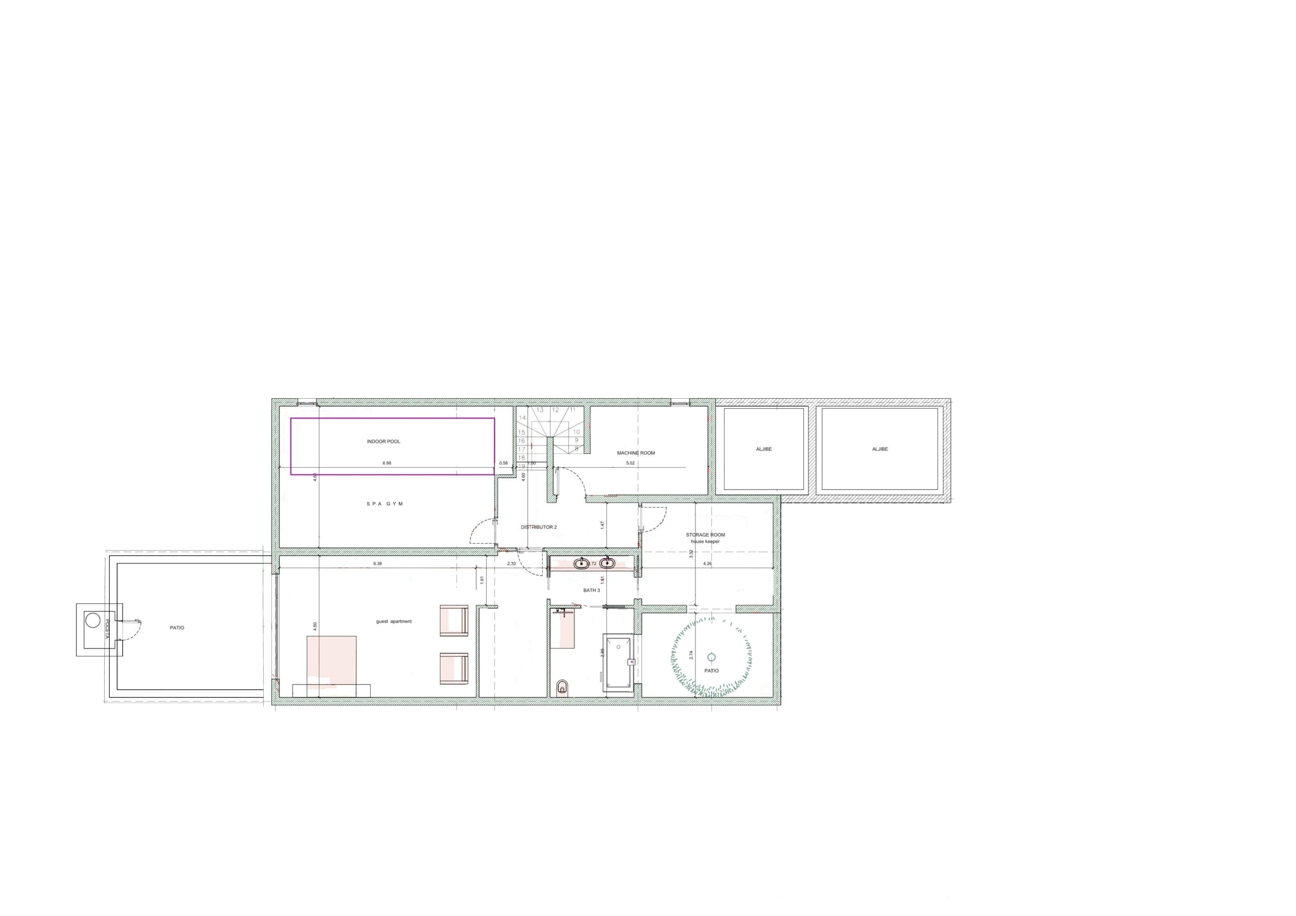
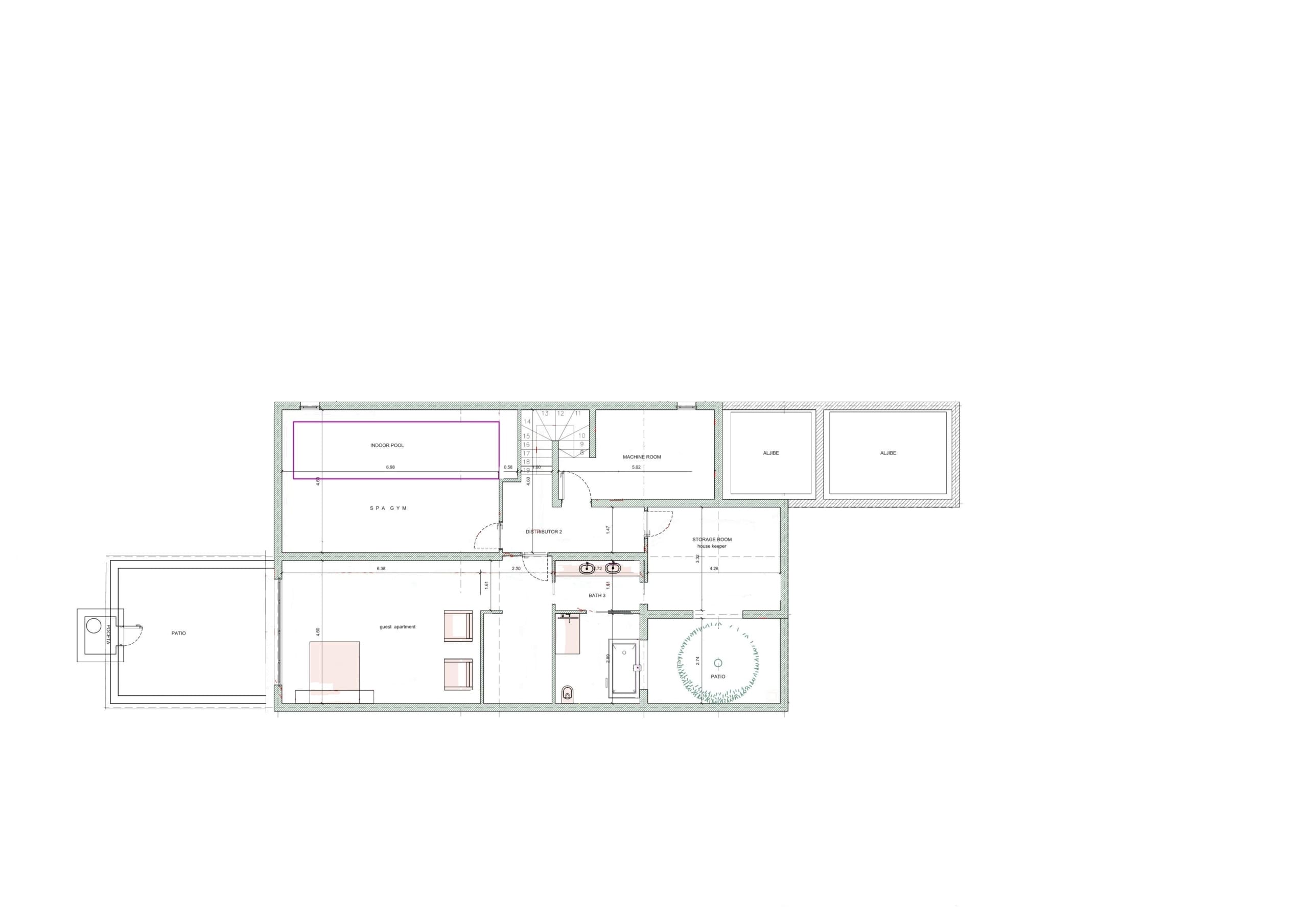
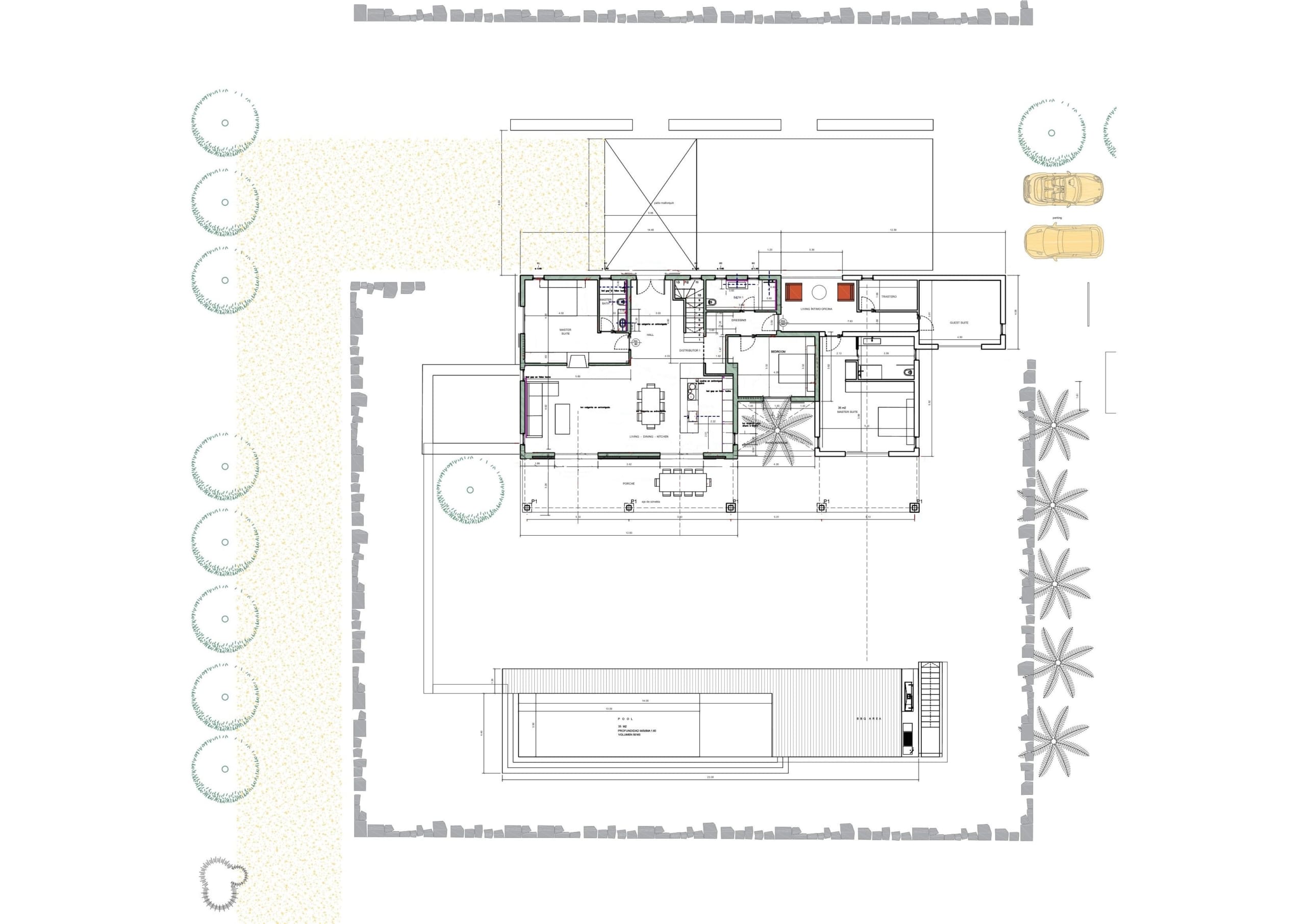
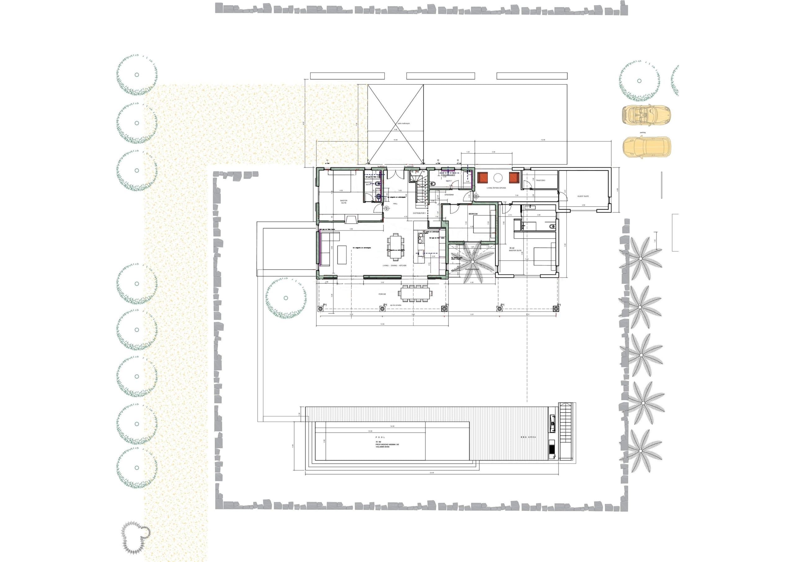
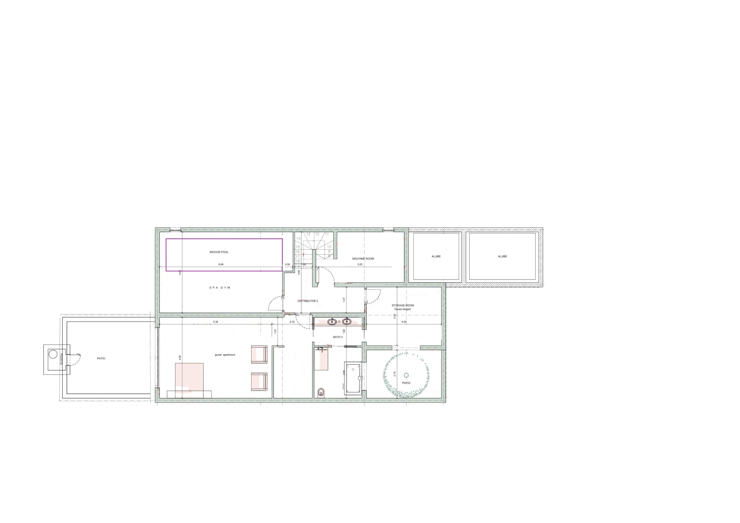
For sale a stunning new finca project in Ses Salines Mallorca Nestled between Ses Salines and Santanyí, on a charming rural plot of over 14,000 m². A beautifully designed finca with around 320 m² of living space will be built in a serene setting, offering breath taking panoramic views across the countryside and vineyards of the Migjorn de Mallorca in the southeast of the island. The welcoming entrance hall leads to the principal rooms on the ground floor. To the righthand side, is a double bedroom complete with a dressing room and an en suite bathroom. On the lefthand side, a hallway leads to another bedroom, a bathroom, and a lounge area or home office with views of two patios, one overlooking the garden and pool and a second towards the entrance of the house which also has a utility area. Passing the small lounge the hall connects to a spacious master suite featuring its own dressing room and en suite bathroom. The generous living and dining area is directly connected to the entrance hall and boasts a fireplace and an open-plan kitchen fitted with high equality appliances and floor-to-ceiling panoramic windows run the length of the living space, granting access to a partially covered terrace perfect for outdoor dining, whether during the day or in the evening. With views of the 35 m² saltwater swimming pool which is surrounded by sunbathing areas and a charming outdoor dining and BBQ space set in a beautifully landscaped Mediterranean garden, with the possibility of adding a vineyard tailored to the buyer's preferences. The basement will include another bedroom with an en suite bathroom and its own private patio, along with a indoor pool gym and ample storage space. In winter, the finca will be heated by a heat pump with central underfloor heating, while in summer, it will stay refreshingly cool thanks to an aerothermal air conditioning system. The property is connected to public electricity and water supplies but can also operate completely independently, generating electricity through a modern photovoltaic system (between 15-25 kWh as needed). This exceptional property provides an opportunity to embrace the Mediterranean countryside lifestyle while remaining connected to the nearby town and the island's stunning coastal attractions. SURFACES EXTERIOR: Plot size                                14.799m2 Constructed Area                   230m2 Pool Size                                     35m2 Terraces                                   100m2 Pergola                                       20m2 SURFACES ROOMS: GROUND FLOOR 160m2 Living, dining, kitchen      53.30m2 Master Bedroom                 17.18m2 Guest Bedroom                   14.26m2 Ceiling Height                       3.20m2 BASEMENT 125m2 Suite                                  19.62m2 Bathroom                          4.38m2 Gym/ Pool                         32.10m2 Machine Room                13.18m2 EQUIPMENT: Audio: Sonos system with B & W / Bose speakers in all living, sleeping and terrace areas. Two / three fireplaces. Windows: Irocco wood / iron with double glazing. Heating / Air conditioning:  Underfloor heating with water circulation, air-water heat pump and solar cells. Individually controlled air conditioning with draft-free installation throughout the house. Flooring: marble, natural stone, exclusive wooden floor in sleeping areas, brushed and limed in German Schotten & Hansen quality. Pool: saltwater pool, natural stone cladding. Master Suite: Fireplace, dressing room. Master bathroom: Wellness shower XL, bath, separate toilet with shower toilet, natural stone washbasin. Guest bathrooms: rain shower, shower toilet, natural stone sink, TV connection. Kitchen: Custom-made kitchen with high-quality Gaggenau appliances. Security: alarm system, outdoor video surveillance, safes. TV reception technology: terrestrial digital and satellite TV in all living and sleeping areas. Audio: Sonos system with B & W / Bose speakers in all living, sleeping and terrace areas. Furnishing: completely designer furniture ready for occupancy, Decoration and basic equipment. Windows: Irocco wood / iron with double glazing. Garden: old trees and plants, automatic irrigation. Contact us for more details. Ses Salines Mallorca in the Migjorn de Mallorca to the southeast of Mallorca Ses Salines is a small coastal Town the area has ten beaches, most of them fine white sand and crystal clear waters, which include a small part of the Coto beach between the municipality of Salinero and Campos, as well as those of El Marqués (es Marquès), Bassa del Cabot , Cala Galiota, El Puerto (es Port), El Dols (es Dolç), Can Curt, El Delfín (es Delfí o Dofí), El Carbón (es Carbó) and Las Roquetas (ses Roquetes).

Egenskaber

Climate control

  • A/C

Features

  • Barbeque
  • Overdækket Terrasse
  • En-Suite Badeværelse
  • Motionsrum
  • home-improvement-12_1
    Vaskehus

Parking

  • Carport
  • Privat

Pool

  • Private pool

Setting

  • Nær Forretninger
  • Nær Marina

Beliggende i

Købekraft

Beregn din månedlige afdrag på lån

Din forventede månedlige ydelse

Bliv forhåndsgodkendt

Bolig-udland samarbejder med Mortage Direct

Vi tilbyder vores kunder de bedst mulige boliglån til ejendomskøb i Spanien. Få det bedste spanske boliglån med Mortgage Direct.

Mere info

Købsomkostninger

Vores udgiftskalkulator giver et skøn over alle omkostninger forbundet med at købe et hus i Spanien. Brug kun disse tal som vejledning: De faktiske tal varierer afhængigt af ejendommen, ejendommens placering og den bank du vælger sammen med andre faktorer. Til det samlede beløb skal du tilføje dine afdrag på dit realkreditlån samt bankgebyrer, hvis din bank opkræver det.

Samlede udgifter

Du kan måske også lide disse boliger