Land til salg i Ses Salines

Bolig ID: MPG-793

€550,000

4,365 €/m2


126
3
soveværelser
3
Badeværelser
626
Grundareal

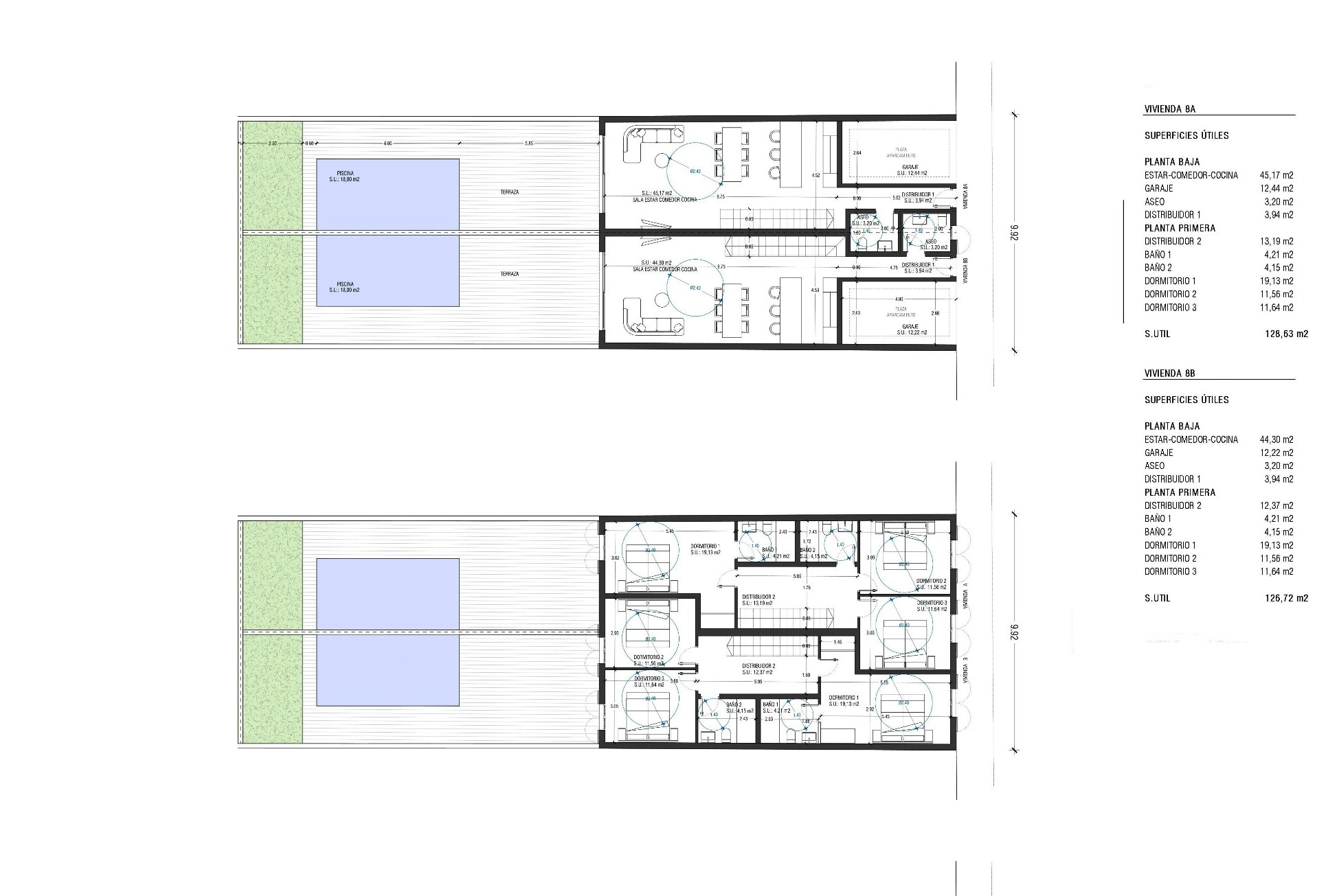
Urban Land For Sale in Ses Salines Mallorca. Looking for an investment opportunity in one of the most charming towns in southern Mallorca? This urban plot has a project applied for the construction of four semi-detached houses, ideal for developing modern homes in a quiet and authentic setting. The license is pending, it has a project for the construction of the four houses each with a guest toilet and open plan kitchen diner and lounge on the ground floor  a garden, garage and the option for a swimming pool. With Three double bedrooms and two bathrooms on the first floor one of which is an ensuite bathroom for the master bedroom. Ses Salines is famous for its proximity to beaches like Es Trenc and its unique Mediterranean atmosphere. The images shown are the proposals for the project application, and plans of the distribution of the proposed construction. Ses Salines Mallorca in the Migjorn de Mallorca to the southeast of Mallorca Ses Salines is a small coastal Town the area has ten beaches, most of them fine white sand and crystal clear waters, which include a small part of the Coto beach between the municipality of Salinero and Campos, as well as those of El Marqués (es Marquès), Bassa del Cabot , Cala Galiota, El Puerto (es Port), El Dols (es Dolç), Can Curt, El Delfín (es Delfí o Dofí), El Carbón (es Carbó) and Las Roquetas (ses Roquetes). Please contact us for more information and details of the project application.

Egenskaber

Pool

  • Private pool

Setting

  • Nær Forretninger
  • Nær Marina
  • Nær Havet

Beliggende i

Købekraft

Beregn din månedlige afdrag på lån

Din forventede månedlige ydelse

Bliv forhåndsgodkendt

Bolig-udland samarbejder med Mortage Direct

Vi tilbyder vores kunder de bedst mulige boliglån til ejendomskøb i Spanien. Få det bedste spanske boliglån med Mortgage Direct.

Mere info

Købsomkostninger

Vores udgiftskalkulator giver et skøn over alle omkostninger forbundet med at købe et hus i Spanien. Brug kun disse tal som vejledning: De faktiske tal varierer afhængigt af ejendommen, ejendommens placering og den bank du vælger sammen med andre faktorer. Til det samlede beløb skal du tilføje dine afdrag på dit realkreditlån samt bankgebyrer, hvis din bank opkræver det.

Samlede udgifter

Du kan måske også lide disse boliger