Byhus/Rækkehus til salg i Ciudad Quesada

Bolig ID: MLC-MLSC9358018

€219,000

2,772 €/m2


79
3
soveværelser
2
Badeværelser
177
Grundareal

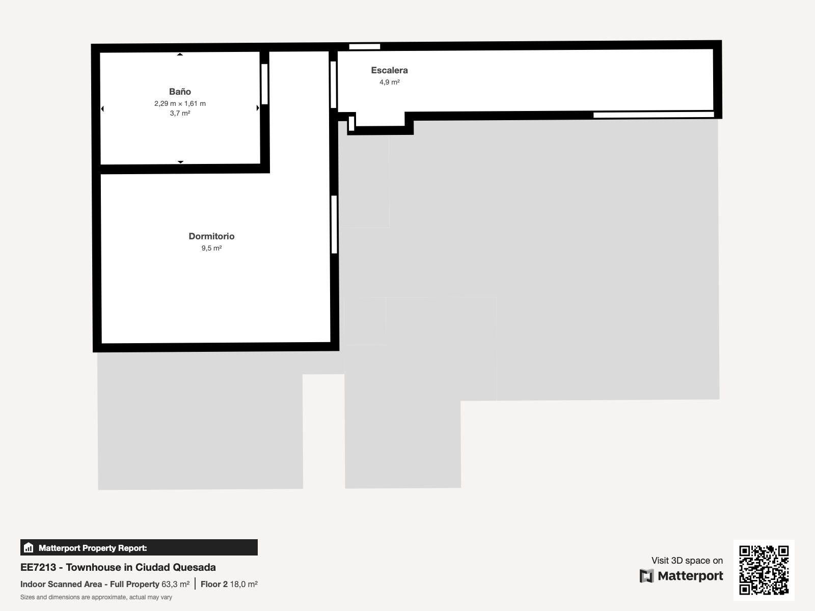
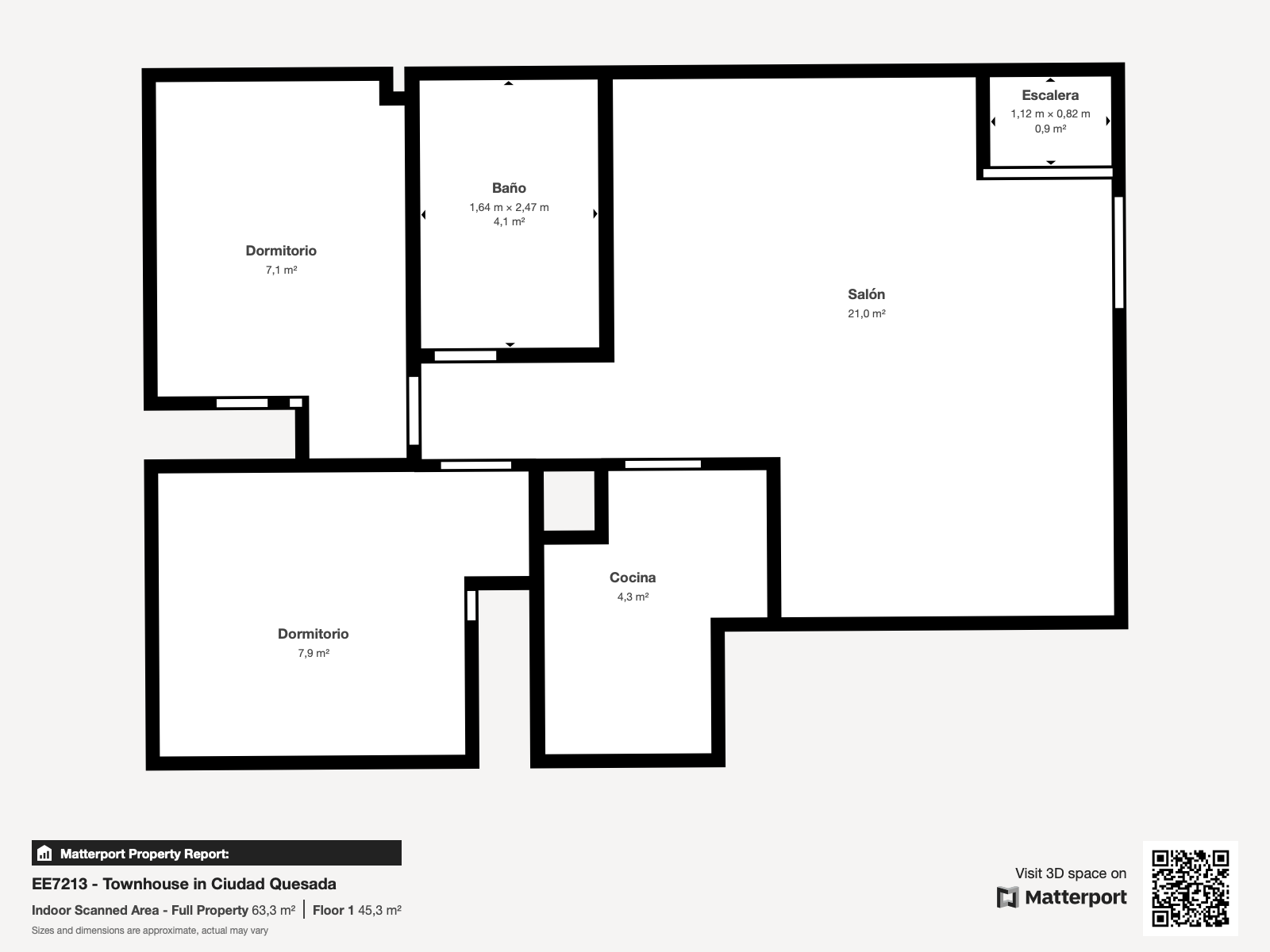
Charming Townhouse in Ciudad QuesadaDiscover this delightful townhouse located on Calle Bo Astrom, just steps away from La Marquesa Golf course. Perfect for golf enthusiasts, families, or anyone seeking a peaceful retreat in the heart of Ciudad Quesada.Property Highlights:Living Space: 79m² of thoughtfully designed interiorsBedrooms: 3 bedrooms, ideal for family and guestsBathrooms: 2 bathrooms for comfort and conveniencePlot Size: 177m², providing ample outdoor spaceAmenities:Air conditioning for year-round comfortSunny terrace to enjoy the Mediterranean climatePrivate garden for relaxation or entertainingHandy storage space for your essentialsAccess to a community pool for refreshing dipsLocation Benefits:Nestled in a neighborhood near La Marquesa Golf, this property offers easy access to local shops, restaurants, and beautiful beaches just a short drive away.Don't miss this opportunity. Contact us today for more details or to schedule a viewing!

Egenskaber

Climate control

  • A/C

Features

  • dresser-drawers-5
    Pulterrum

Setting

  • Nær Golf
  • Nær Forretninger
  • Nær Havet
  • shanty-house-village-1
    Nær By
  • Nær Marina

Beliggende i

Købekraft

Beregn din månedlige afdrag på lån

Din forventede månedlige ydelse

Bliv forhåndsgodkendt

Bolig-udland samarbejder med Mortage Direct

Vi tilbyder vores kunder de bedst mulige boliglån til ejendomskøb i Spanien. Få det bedste spanske boliglån med Mortgage Direct.

Mere info

Købsomkostninger

Vores udgiftskalkulator giver et skøn over alle omkostninger forbundet med at købe et hus i Spanien. Brug kun disse tal som vejledning: De faktiske tal varierer afhængigt af ejendommen, ejendommens placering og den bank du vælger sammen med andre faktorer. Til det samlede beløb skal du tilføje dine afdrag på dit realkreditlån samt bankgebyrer, hvis din bank opkræver det.

Samlede udgifter

Du kan måske også lide disse boliger