Penthouse til salg i Roda

Bolig ID: MLC-MLSC7317483

€290,000

3,718 €/m2


78
2
soveværelser
2
Badeværelser
0
Grundareal

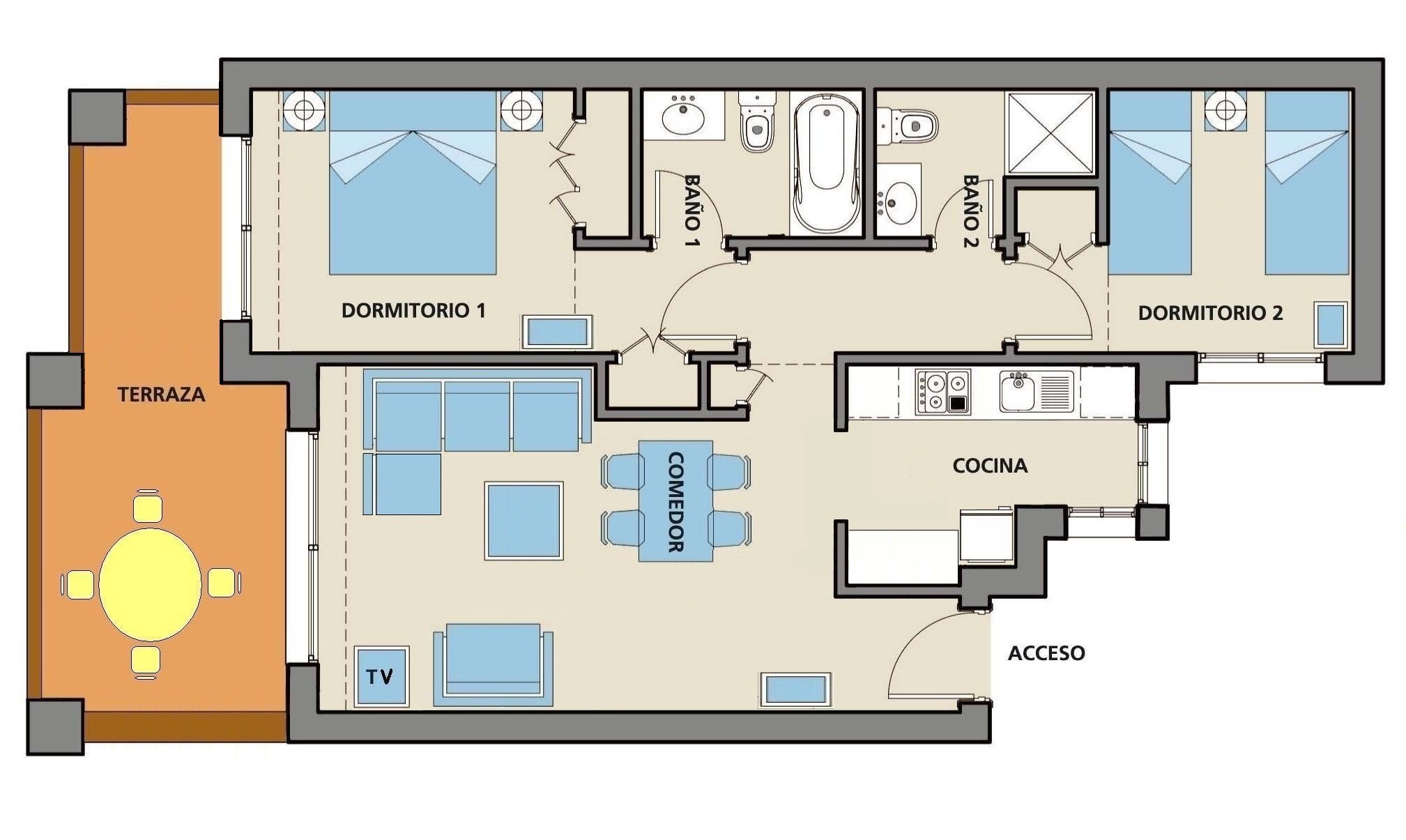
This stunningly updated two-bedroom, two-bathroom penthouse apartment with an impressive rooftop garden, thoughtfully designed for outdoor living and entertainment. The rooftop features a fully equipped BBQ kitchen with marble countertops, hot and cold water, a fridge/freezer, a wine fridge, a TV, and a Bose sound system, creating the perfect space for hosting gatherings. From this vantage point, enjoy breathtaking panoramic views of the Mar Menor, with nearly 300 days of picturesque sunrises and sunsets over the mountains each year.The interior boasts luxurious marble flooring throughout, with en-suite and main bathrooms finished with floor-to-ceiling marble. Ideally located near the Club House and main entrance, the penthouse offers easy access to nearby amenities and the Mar Menor Golf Resort. The master bedroom includes an en-suite with a walk-in shower and built-in wardrobes, while the kitchen on the lower level is fully equipped for your convenience.The spacious and bright lounge/dining area, along with the master bedroom, opens to a generous terrace and Juliette balcony, providing beautiful views of the well-maintained communal gardens and swimming pools. Additional features include negotiable furniture, air conditioning, gas central heating, underground parking, and a storage room with lighting, making this property as functional as it is inviting.

Egenskaber

Climate control

  • A/C
  • Centralvarme

Features

  • Marmorgulv
  • dresser-drawers-5
    Pulterrum
  • Barbeque
  • dresser-wardrobe
    Indbyggede Garderobeskabe

Parking

  • Parkeringskælder

Setting

  • Nær Golf

Beliggende i

Købekraft

Beregn din månedlige afdrag på lån

Din forventede månedlige ydelse

Bliv forhåndsgodkendt

Bolig-udland samarbejder med Mortage Direct

Vi tilbyder vores kunder de bedst mulige boliglån til ejendomskøb i Spanien. Få det bedste spanske boliglån med Mortgage Direct.

Mere info

Købsomkostninger

Vores udgiftskalkulator giver et skøn over alle omkostninger forbundet med at købe et hus i Spanien. Brug kun disse tal som vejledning: De faktiske tal varierer afhængigt af ejendommen, ejendommens placering og den bank du vælger sammen med andre faktorer. Til det samlede beløb skal du tilføje dine afdrag på dit realkreditlån samt bankgebyrer, hvis din bank opkræver det.

Samlede udgifter

Du kan måske også lide disse boliger