Byhus/Rækkehus til salg i Pilar de la Horadada

Bolig ID: MLC-MLSC2607734

€235,000

2,611 €/m2


90
2
soveværelser
1
Badeværelser
0
Grundareal

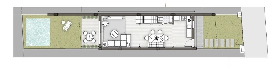
MODERN HOME IN A PRIME LOCATION IN PILAR DE LA HORADADAAre you looking for a contemporary home with a touch of luxury, just a stone's throw from everything you need? Then this modern gem in Pilar de la Horadada is the place for you.ATMOSPHERIC LIVING IN AN IDEAL LOCATIONThis stylish home offers a perfect balance between comfort and location:2 bedrooms, including a master with a handy dressing room. 1 spacious bathroom and a separate toilet: ideal for guests. Private swimming pool to enjoy a refreshing dip, whenever you want. 3 terraces, so you can enjoy the sun all day long or seek out the shade. Extra storage space for your golf clubs and air conditioning for summer and winter.PILAR DE LA HORADADA – THE HEART OF THE COSTA BLANCAThis home is located in one of the most sought-after areas of the Costa Blanca. Pilar de la Horadada is known for its authentic charm, welcoming atmosphere, and ideal location.The bustling city centre with cosy squares, shops, and delicious restaurants is within walking distance. You can reach the golden sandy beaches and the azure blue water in just 10 minutes by bike or 5 minutes by car. For sports enthusiasts, it is the perfect location: a stone's throw from the exclusive Lo Romero Golf and the popular padel club "Padel Place."Here you live among the locals, enjoy a relaxed Mediterranean lifestyle, and have all modern amenities within reach.A DREAM HOME FOR YOUR NEW ADVENTUREA modern design, a top location, and the luxury of your own private pool – this house offers everything you are looking for and more.La Casa de Sueños – Together we will find your dream home!

Egenskaber

Climate control

  • A/C

Features

  • dresser-drawers-5
    Pulterrum

Pool

  • Privat

Setting

  • Nær Golf
  • Nær Forretninger
  • Nær Havet
  • Nær Marina

Beliggende i

Købekraft

Beregn din månedlige afdrag på lån

Din forventede månedlige ydelse

Bliv forhåndsgodkendt

Bolig-udland samarbejder med Mortage Direct

Vi tilbyder vores kunder de bedst mulige boliglån til ejendomskøb i Spanien. Få det bedste spanske boliglån med Mortgage Direct.

Mere info

Købsomkostninger

Vores udgiftskalkulator giver et skøn over alle omkostninger forbundet med at købe et hus i Spanien. Brug kun disse tal som vejledning: De faktiske tal varierer afhængigt af ejendommen, ejendommens placering og den bank du vælger sammen med andre faktorer. Til det samlede beløb skal du tilføje dine afdrag på dit realkreditlån samt bankgebyrer, hvis din bank opkræver det.

Samlede udgifter

Du kan måske også lide disse boliger