Villa til salg i Altea

Bolig ID: EXH-LUX0032

€1,650,000

3,374 €/m2


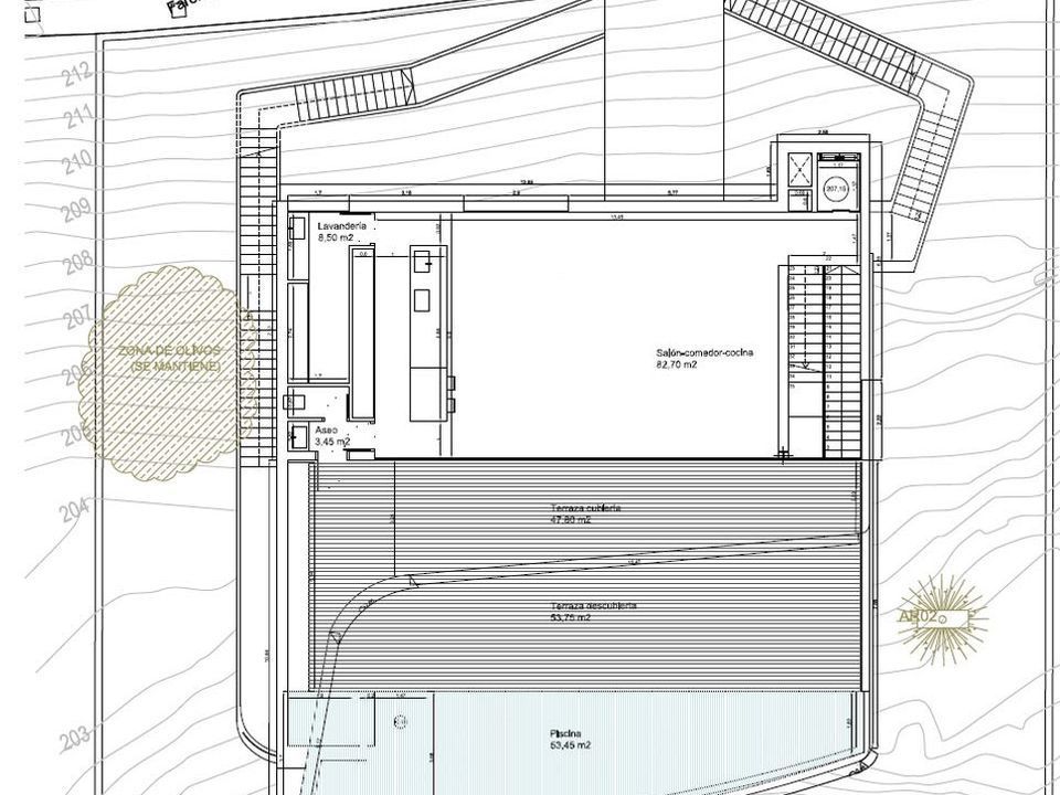
489
4
soveværelser
4
Badeværelser
1075
Grundareal

monteret køkken, air conditioning, opvarmning, Garden, Terrasse, parkering, elevatoren, monteret garderobeskabe, dobbeltruder, havudsigt, lagerrummet

Egenskaber

Climate control

  • Gulvvarme

Features

  • lift
    Elevator
  • Jacuzzi

Setting

  • Nær Havet
  • shanty-house-village-1
    Nær By

Udsigt

  • Hav

Beliggende i

Købekraft

Beregn din månedlige afdrag på lån

Din forventede månedlige ydelse

Bliv forhåndsgodkendt

Bolig-udland samarbejder med Mortage Direct

Vi tilbyder vores kunder de bedst mulige boliglån til ejendomskøb i Spanien. Få det bedste spanske boliglån med Mortgage Direct.

Mere info

Købsomkostninger

Vores udgiftskalkulator giver et skøn over alle omkostninger forbundet med at købe et hus i Spanien. Brug kun disse tal som vejledning: De faktiske tal varierer afhængigt af ejendommen, ejendommens placering og den bank du vælger sammen med andre faktorer. Til det samlede beløb skal du tilføje dine afdrag på dit realkreditlån samt bankgebyrer, hvis din bank opkræver det.

Samlede udgifter

Du kan måske også lide disse boliger