Grund til salg i Benissa

Bolig ID: CPS-CBD1651

€315,000

€/m2


0
0
soveværelser
0
Badeværelser
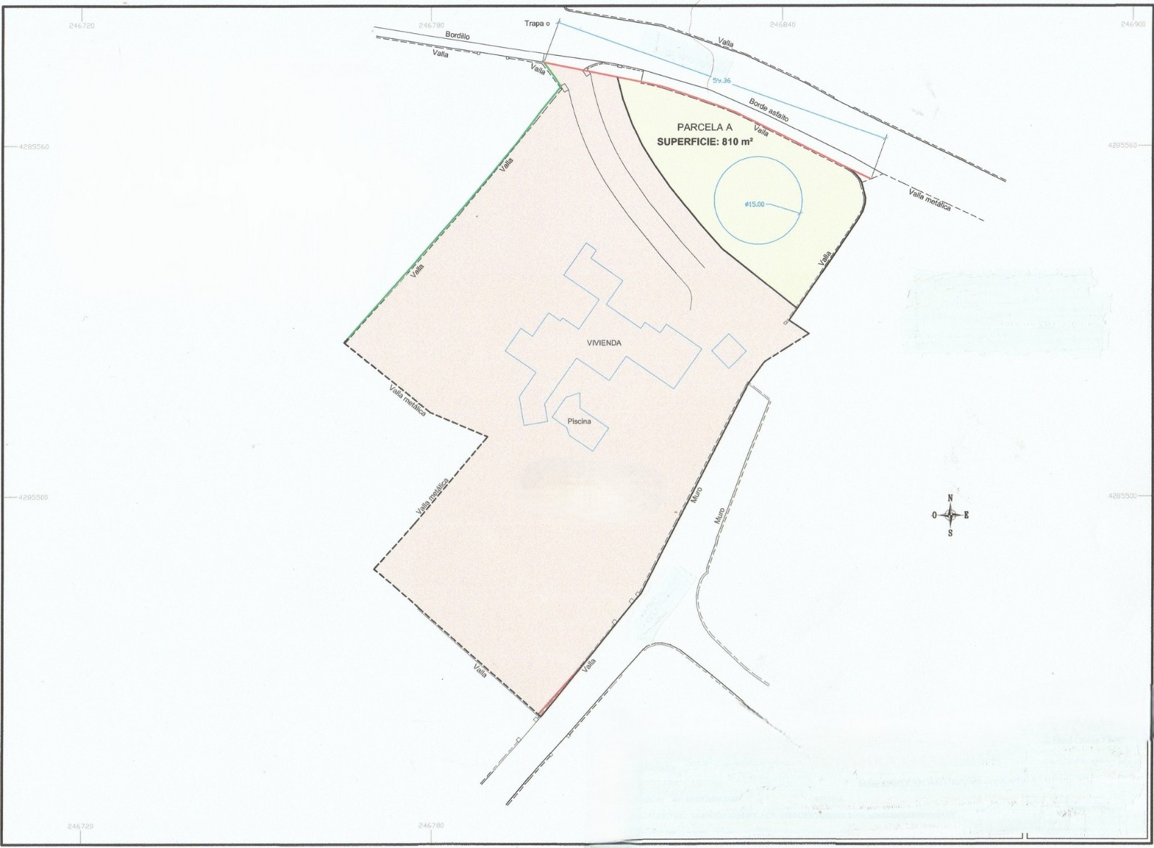
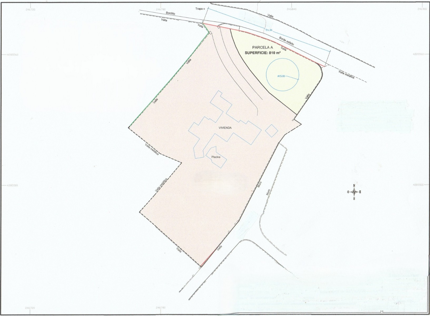
810
Grundareal

This flat plot with lovely open views has walls on two sides and is presently fenced on the other two sides. The plot is only a short drive to the beach and supermarket and is conveniently situated between the towns of Moraira and Calpe. Construction will be straight forward, with water and electricity already in the road, deliveries from the road will be easy and of course building on a flat plot is a luxury in our area. Construction of 20% of the plot size will be possible.- Distances:- Supermarket 1.3km- Beach and restaurants 1.9km- Moraira 6.4km- Calpe 6.7km- Motorway access in Benissa 8km- For further information please do not hesitate to contact us.

Egenskaber

Setting

  • Nær Havet
  • shanty-house-village-1
    Nær By

Beliggende i

Købekraft

Beregn din månedlige afdrag på lån

Din forventede månedlige ydelse

Bliv forhåndsgodkendt

Bolig-udland samarbejder med Mortage Direct

Vi tilbyder vores kunder de bedst mulige boliglån til ejendomskøb i Spanien. Få det bedste spanske boliglån med Mortgage Direct.

Mere info

Købsomkostninger

Vores udgiftskalkulator giver et skøn over alle omkostninger forbundet med at købe et hus i Spanien. Brug kun disse tal som vejledning: De faktiske tal varierer afhængigt af ejendommen, ejendommens placering og den bank du vælger sammen med andre faktorer. Til det samlede beløb skal du tilføje dine afdrag på dit realkreditlån samt bankgebyrer, hvis din bank opkræver det.

Samlede udgifter

Du kan måske også lide disse boliger